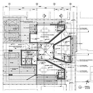
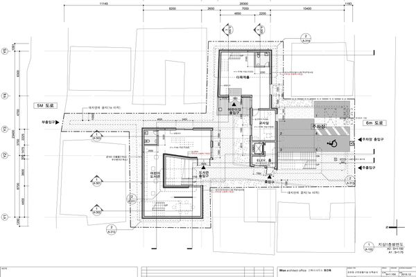
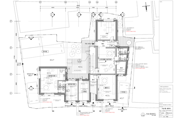
* 과제내용 :이전의 디자인 스튜디오에서 배우고 익힌 설계지식을 종합하여 시공을 전제로 한 디자인으로 완성하는 단계이다. 건축 관련 분야인 토목, 구조, 기계설비, 전기설비 등의 기술지식을 고려하고 피난과 안전설계, 무장애설계, 에너지 절약 등의 법적인 기준과 실무적 내용을 반영하여 통합적인 실시설계 도서를 작성하는 능력을 배양한다.* 포스트내용 :- 대표이미지 1개- 과제포스트 - 평면도 2개 (1/100~200) - 입면도 2개 (1/100~200) - 단면도 1개 (1/100~200) - 확대 단면도 1개 (1/50) - 상세도 1개 (1/20~10)* 과제 제출 요령오픈아카이브 메뉴얼 바로가기* 과제제출 주의사항대표 이미지:!!내용: 잘 찍은 사진, 과제의 대표성 강조가시성: 300px X 300px 크기에서 잘 읽히는 내용을 담을 것.용량: 1mb 이하.* 각 이미지는 용량 2M 이하
_b2b5fa40-64cb-11e9-88e4-c38c87fd1f01.jpg&width=600&height=400)



-01_aa90d2a0-64ca-11e9-88e4-c38c87fd1f01.jpg&width=600&height=400)
