About
Log in
Semester
Class
Project
About
Log in
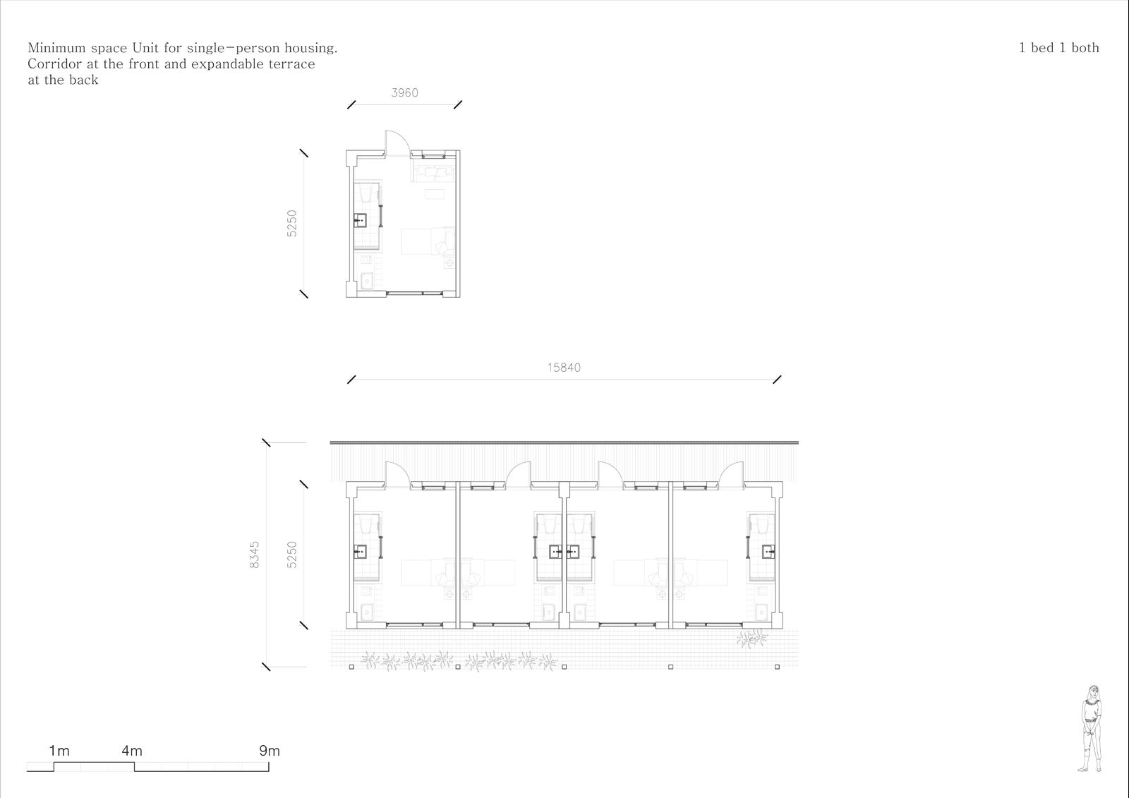
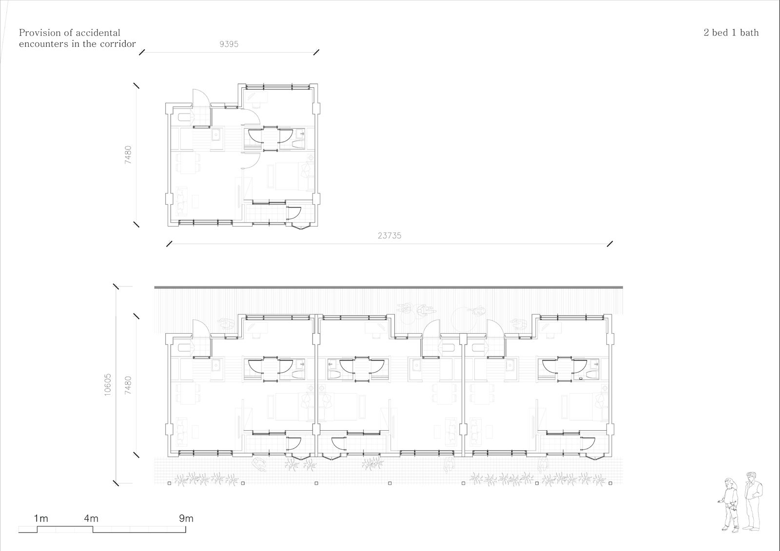
중간평가 자료 : 개별 단지 설계
Mid-Term : Individual Housing Block Design
캡스톤건축설계4
::
Capstone Architectural Design 4
Capstone Architectural Design 4 Studio D Chang Hoon Shin
이원준
|
2026-02-28 07:36
이원준
의 저작물인
이 저작물은
크리에이티브 커먼즈 저작자표시 4.0 국제 라이선스
에 따라 이용할 수 있습니다.
Copyright ©
uosarch.ac.kr
., Some rights reserved.
고장 및 불편 신고