About
Log in
Semester
Class
Project
About
Log in
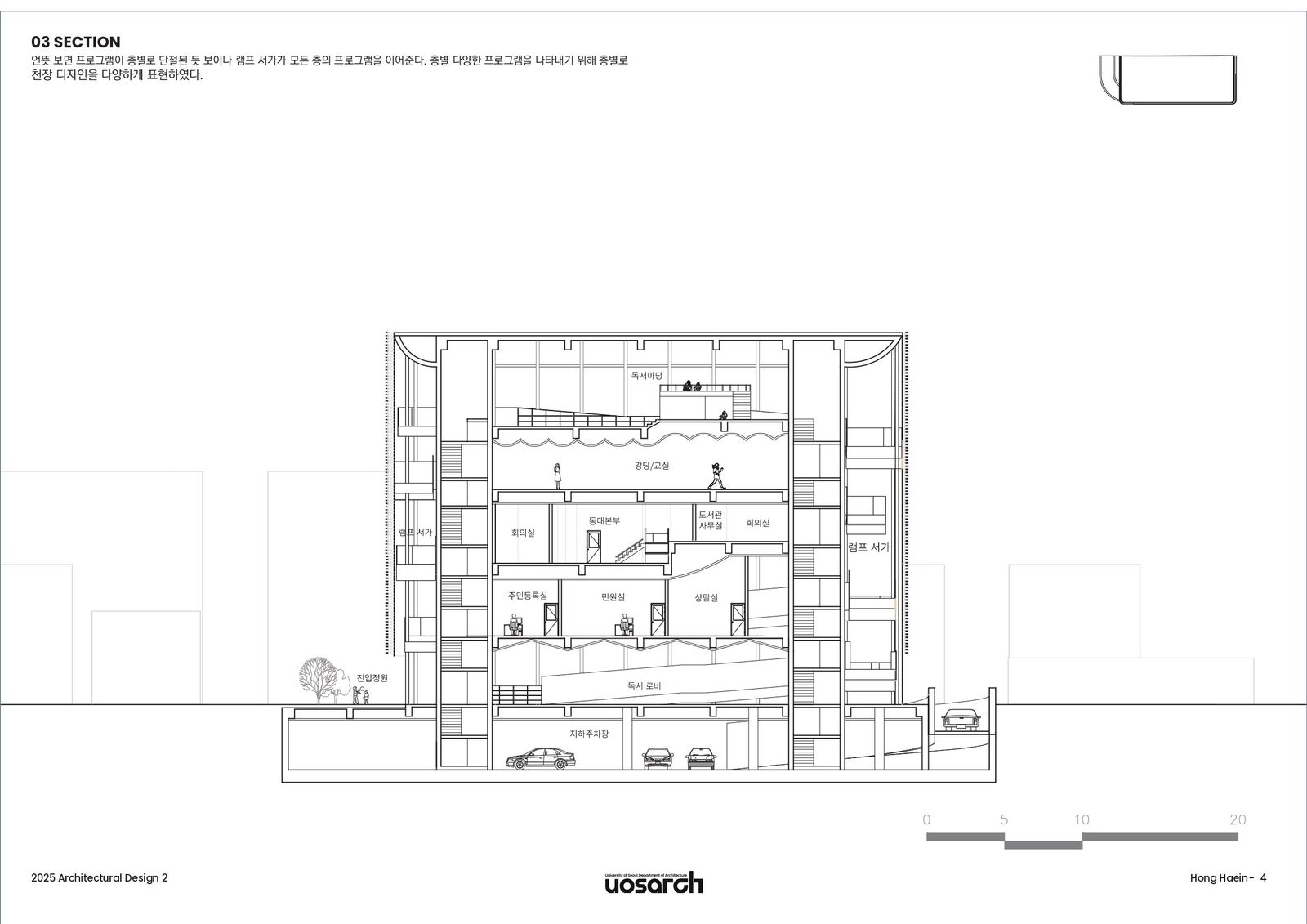
커뮤니티 도서관 프로젝트 설계
Community Library Project Design
건축설계 2
::
Architectural Design 2
Architectural Design 2 Studio D Jeongwon Yang
홍해인
|
2025-12-28 13:37
홍해인
의 저작물인
이 저작물은
크리에이티브 커먼즈 저작자표시 4.0 국제 라이선스
에 따라 이용할 수 있습니다.
Copyright ©
uosarch.ac.kr
., Some rights reserved.
고장 및 불편 신고