'연결'. 과제1에서 얻은 이 키워드는 계속해서 그 다음 과제로 뻗어나갔다.
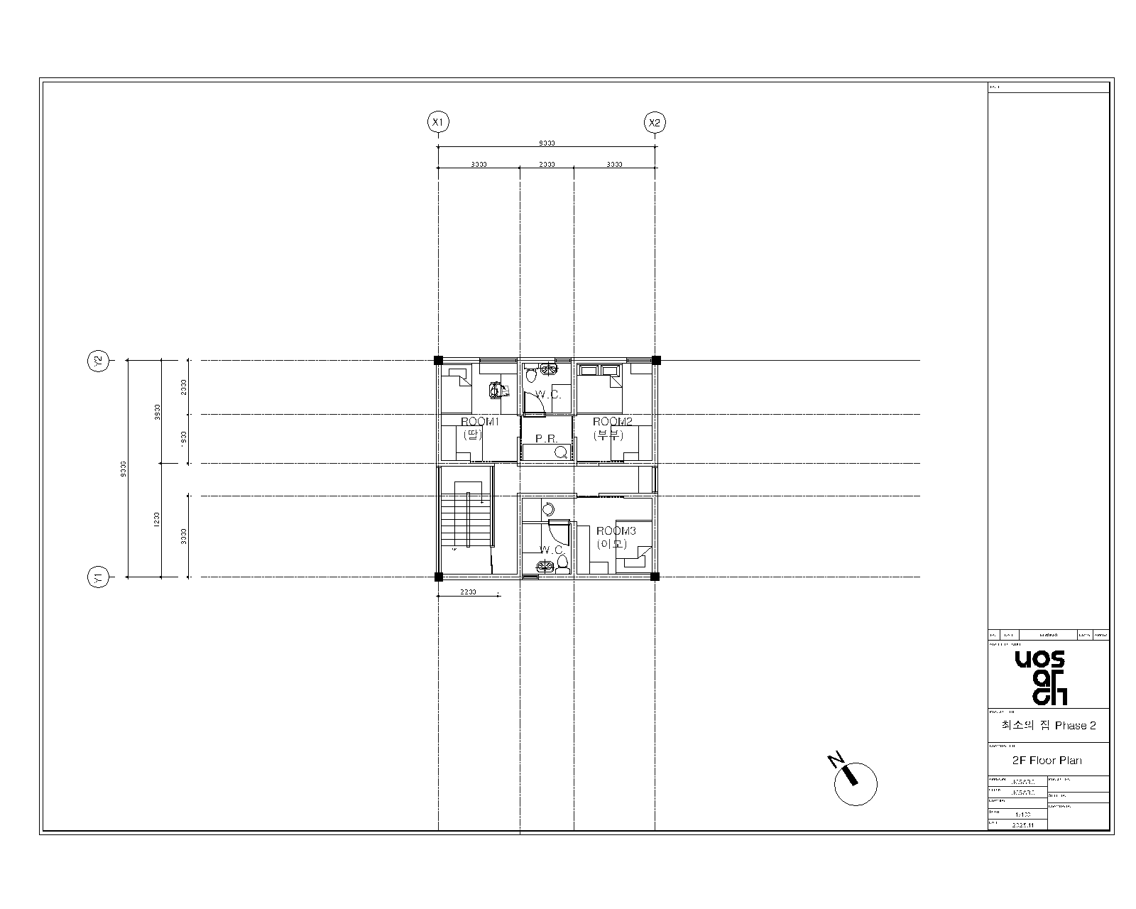
1. 페르소나 설정 해외에 있는 기러기 아빠, 초등학교 2학년 딸과 그 딸을 키우는 주부 엄마, 그리고 엄마의 언니, 프리랜서 상담가 이모. 정주인원은 4인이지만 실제로는 거의 3인이 이용하는 셈이다. 이러한 사람들의 성향을 분석했을 때, 잠자는 공간보다는 함께 활동할 수 있는 공간이 더욱 중요하다고 파악했다. 이에 활발한 활동이 가능한 공간을 아래층에 배치하고, 침실 위주의 공간과 다락을 윗층에 배치하였다. 1층에서는 보다 넓게 자유로운 활동을, 2,3층에서는 최소한의 활동을 하도록 의도하였다.
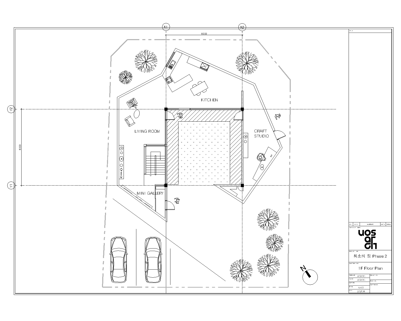
2. 사용자를 고려한 최소한의 공간 모듈 형성 우선, 엄마와 딸이 사용하는 공간과 이모의 공간을 분리하고, 이를 연결하는 브릿지가 필요하다고 생각했다. 따라서 이것을 만족하는 최소한의 '모듈'을 만들었다. 엄마와 딸, 이모의 공간을 분리해 두고 사이에 연결하는 공간을 둔다. 물론 벽을 두어 붙어 있어도 이모와 분리할 수 있지만, 연결되는 하나의 흐름의 공간 속에서 거리를 이용하여 각 공간들을 분리하였다. 또한 선정한 사이트 B는 세 면이 도로로 둘러싸여 있다. 따라서 사이트의 도로와 맞닿아 있는 부분에 주택이 들어서기에, 최대한의 프라이버시를 보장하기 위한 형태로 중정을 가운데에 두고 도로와 반대 쪽으로 출입할 수 있도록 공간을 배치하였다.
3. 조형적 실험 이제 평면 모듈 그림을 이용하여 공간을 만드는 단계이다. 먼저 덩어리로 만들어 보았다. 그리고 덩어리에서는 보이지 않는 각도, 높이들을 종이 접기를 통해 알아 보았다. 이렇게 얻은 정보를 다시 매스 모형에 적용하여 변형하며 다시 만들었다. 즉, 아이소핑크와 종이를 번갈아 만들어보며 서로 상호보완하는 더 발전된 모형들을 만들어 갔다. 이렇게 '자유롭게' 형태를 만들어 보며 실험을 진행하였다. 이때, 모형들은 각기 다른 형태인 것처럼 보이지만, 공통된 점은 하나의 띠에서 접히고 변형된다는 점이다.
4. 공간 구성 가장 마음에 드는 매스 모형을 선정해 공간을 구성하였다. 단순히 매스 모형에서 보이는 그대로 공간을 만드는 것이 아닌, 막힌 부분이 보이드일 수도 있다는 생각, 경사로가 있다면 그것이 바닥이 될 수도 혹은 지붕, 벽이 될 수도 있다는 생각, 그 공간에 들어갔을 때 어떨지 등의 생각들을 하며 1층 공간을 만들어 갔다.
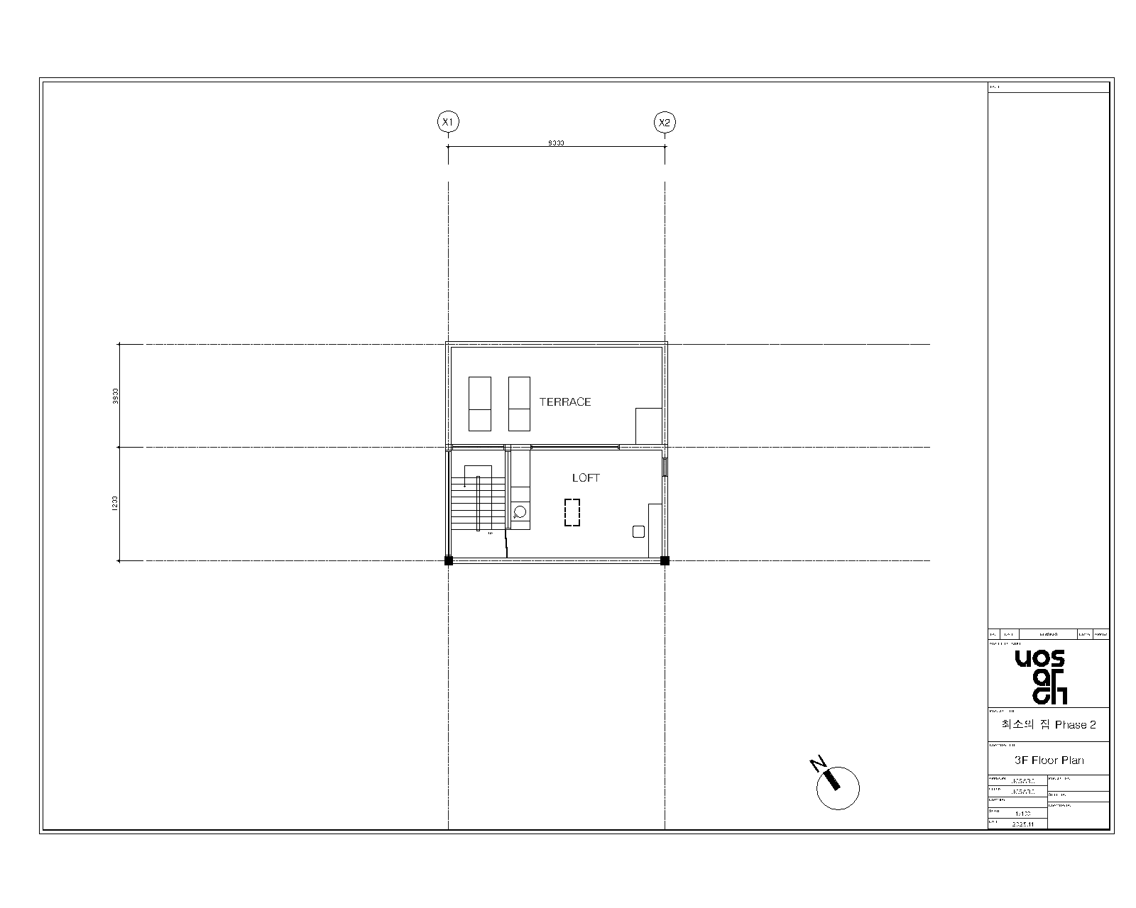
조형적 실험을 통해 1층 공간의 형태를 구성한 후, 거실, 주방, 놀이 공간 등의 프로그램들 두었다. 1층 공간의 중심 부분에 보이드를 두고 그 위에 2,3층을 콤팩트하게 두었다. 즉, 1층에서 보는 보이드는 뚫린 중정과 같이 보이고, 그 중정에 들어서면 위로 막힌 2층 바닥이 느껴지며, 전체적으로 보았을 때는 유동적으로 보이는 1층과 그 위에 떠있는 2,3층이 두드러진다. 2층에는 침실과 화장실, 그리고 방에 책상이 놓여져 있다. 다락에는 건식 세면대와 책상, 그리고 테라스가 있다. 3층에서는 공원을 바라볼 수 있는 방향으로 테라스를 두었다.
5. 공간 도면화
크리에이티브 커먼즈 라이선스
이주은의 저작물인 이 저작물은 크리에이티브 커먼즈 저작자표시 4.0 국제 라이선스에 따라 이용할 수 있습니다.
Copyright © uosarch.ac.kr., Some rights reserved.
고장 및 불편 신고