About
Log in
Semester
Class
Project
About
Log in
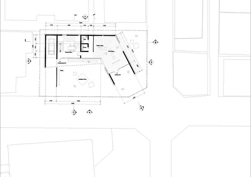
최소의 집 Phase 03: 표현과 소통하기
Phase 03: Architectural Representation /Presentation
기초설계 2
::
Elementary Design 2
Elementary Design 2 Studio D Min Jae Kim
이도현
|
2025-12-21 19:47
이도현
의 저작물인
이 저작물은
크리에이티브 커먼즈 저작자표시 4.0 국제 라이선스
에 따라 이용할 수 있습니다.
Copyright ©
uosarch.ac.kr
., Some rights reserved.
고장 및 불편 신고