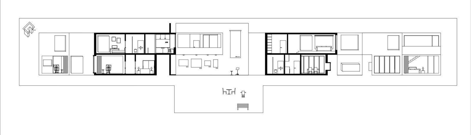
나는 먼저 과제 2에서 설계한 주택에서 무엇을 강조하고 싶은지 떠올렸다. 과제 3에서는 주택의 창과 공간의 돌출,내입 그리고 중정과 아트월이 만들어내는 대비감을 동시에 표현하고자 했다. 이를 위해 주택을 전개하여 모든 부분을 한눈에 볼 수 있는 방식을 선택하였다. 각 면의 입면과 단면을 혼합해 긴 포맷을 구성하고, 이를 바탕으로 과제를 진행하였다.
먼저 구조적인 골조나 가구들은 캐드 선으로 딱딱한 느낌을 주었다.
캐드 도면 위에 트레이싱지를 올려 손그림으로 자연과 사람, 그리고 창과 공간의 돌출과 내입을 강조해 표현했다. 내가 가장 신경 쓴 부분은 손그림의 성격이었다. 캐드 선이 정확하고 직선적이어서 구조적이고 단단한 인상을 준다면, 트레이싱지 위에 그린 손그림은 훨씬 부드럽고 인간적인 느낌을 지닌다. 나는 변하지 않는 구조 위에서 매일 변화하는 사람들의 삶이 만들어내는 대비감을 느낄 수 있도록 표현하고자 했다.
크리에이티브 커먼즈 라이선스
인주혜의 저작물인 이 저작물은 크리에이티브 커먼즈 저작자표시 4.0 국제 라이선스에 따라 이용할 수 있습니다.
Copyright © uosarch.ac.kr., Some rights reserved.
고장 및 불편 신고