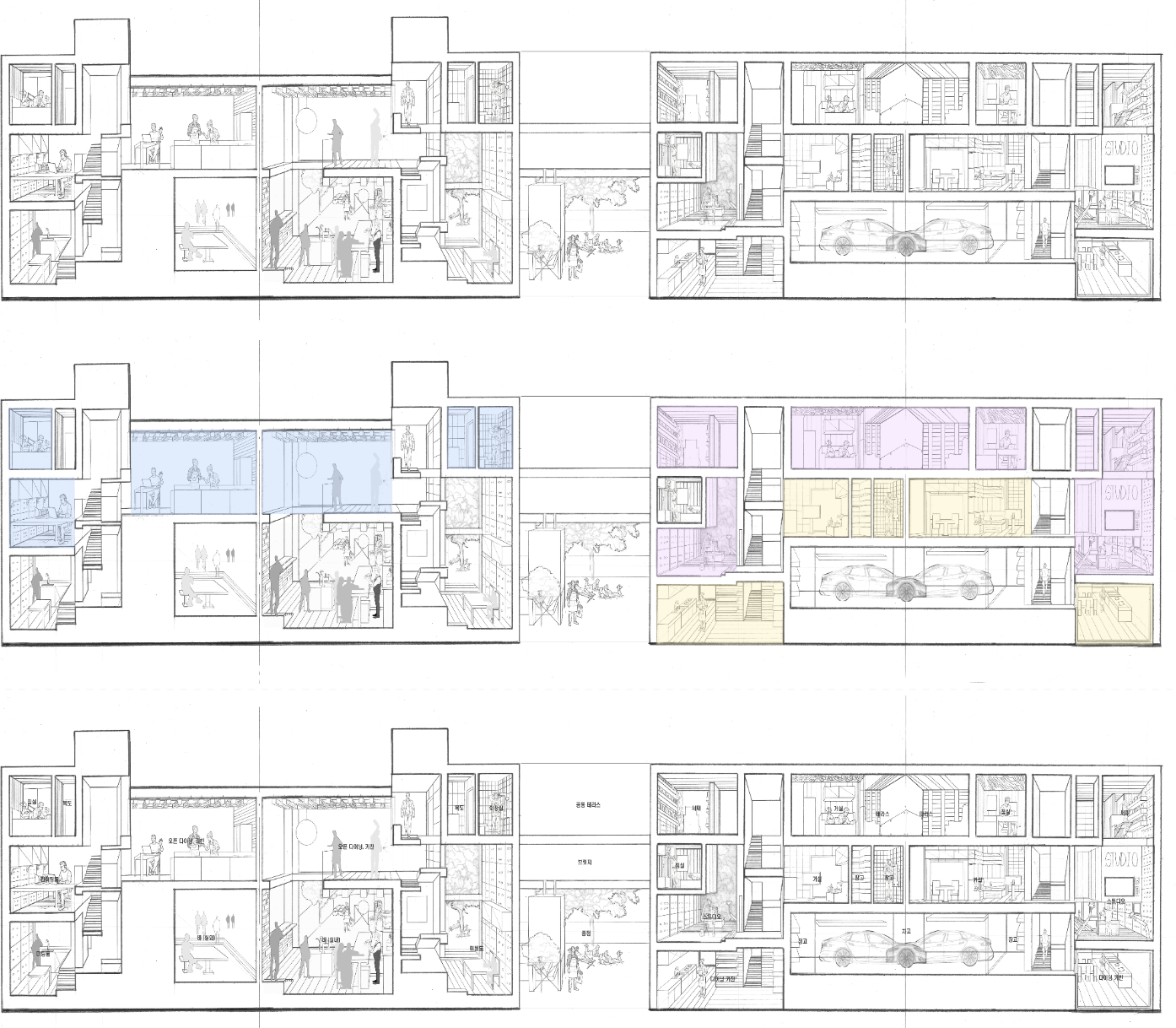
과제 3에서 하고 싶은 것은 너무 확실했다. 오픈되고, 슬라브간의 레벨이 다른 입체적인 건물의 특성을 보여주기 위해서는 단면 투시도(Section Perspective)만한 것이 없다고 생각했다. 그렇기에 한 상황을 잘라 펼쳐 이 건물에서 어떤 상황이 일어나는지를 보여주려 했다. 하나의 공간을 여러 각도에서 조명하며 한 공간이 다양한 각도에서 어떻게 보이고, 어떻게 활용되는지를 보여주는 것이 내 건물을 보이는 가장 확실한 방법이라고 생각했기 때문이다
강렬한 한장의 이미지를 원했기에, 가로 1m 가량의 거대한 그림을 생각했다. 라이노로 단면을 만들고 이를 포토샵에서 이어 붙이고 그 위에 그림과 사진을 붙이는 콜라쥬 형식을 생각했으나 플루터로 인쇄한 종이 위에 스케치가 쉽지 않아 처음부터 스케치하기로 노선을 바꾸었다.
기초 스케치가 어느 정도 끝난 사진이다. 단면선에 라이네이트를 주어 입체감을 주었다. 단면선은 홀더 이외의 선은 0.3 샤프를 사용했다.
약 2주동안 계속 그림을 그려 내부를 완성한 모습이다. 라이네이트를 조금씩 계속 바꾸었다. 단면선은 홀더 계단과 벽 같이 건물의 실루엣 부분은 0.7 샤프 가구나 바닥 마감과 같은 부분은 0.3 샤프를 사용했다. 이외에도 라이네이트가 부족하다고 생각하면 05, 0.9 샤프를 사용해 최대한 자연스럽게 보이도록 그림을 완성했다.
트레이싱지에 나무, 차 등을 인쇄해 붙이고 외부 업체에 스캔을 맡겼다. 스튜디오 / 미팅룸에서 보는 나무를 극적이게 보이도록 하고 싶은 의도가 정확히 반영되었고, 스캔을 통해 디지털 파일이 생기며 내가 하고 싶은 것을 훨씬 더 많이 도전할 수 있게 되었다.
2차원적인 단면의 단점은 단면 투시도를 활용해 극복했고, 한 단면만 보여주는 단면 투시의 단점은 단면을 이어붙임으로서 해결했다. 공간을 최대한 디테일하게 표현하고, 그 안에 사람들도 넣음으로서 모든 공간이 어떻게 사용되고, 어떤 공간인지를 어떤 드로잉보다 확실하게 보여줬다. 또한 스캔을 통한 디지털화의 장점을 살려 다양한 버젼을 만들었다. 포토샵에서 사람을 합성한 기존 버젼 컬러링을 통해 공간을 표시한 버젼 실명을 표시한 버젼을 완성했다. 또한 이런 일련의 과정을 통해 드로잉 자체가 만화같다는 생각을 했기에 만화책을 한 부 만들어 과제3을 마무리 했다.
프레젠테이션에서 풍년빌라를 '필연적으로 쌓아질 수 밖에 없음 ' 이라고 표현했다. 한 학기 내내 앓고 고민하며 가지고 온 '풍년빌라스러움'보다, 발표 때 무의식적으로 나온 단어 한 구가 오히려 더 풍년빌라스러운 단어였다는 것이 허탈하기도 하고 재밌기도 하다. 아카이빙을 하며 더 확실히 느껴진다. '필연적으로 쌓아짐'을 최종 발표 때 빼고는 말한 적이 없었지만, 무의식적으로 그걸 알고 있었던 것인지 디자인 프로세스 전체가 필연적으로 이 건물이 될 수 밖에 없게 되어 있다. 과정 상에 있을 때는 몰랐지만, 결국 이렇게 될 수 밖에 없었던 것 같다. 내 능력 이상의 주제였던 한 학기였지만, 결국 이렇게 될 수 밖에 없어 다행이다
크리에이티브 커먼즈 라이선스
백종헌의 저작물인 이 저작물은 크리에이티브 커먼즈 저작자표시 4.0 국제 라이선스에 따라 이용할 수 있습니다.
Copyright © uosarch.ac.kr., Some rights reserved.
고장 및 불편 신고