처음에 주택 설계를 시작할 때, '채광'이라는 하나의 핵심 개념을 가지고 시작하였다. 직사각형 매스를 하나 두고, 중앙을 비우거나 매스를 더하는 방식으로 채광을 고려하며 매스를 배치하였다.
-채광 이 주택에서 가장 주요한 특징은 채광이라고 할 수 있다. 1층에서 중정을 비우고 2층을 45도 각도로 배치함으로써 삼각형 또는 사다리꼴 형태의 보이드가 생겨났는데, 이 사이로 햇빛이 들어오며 중정을 빛으로 채운다. 이 빛은 바닥에 깔린 물을 따라 반사되어 주택의 내부로 들어간다. 증발한 물은 중정을 채우며 빛의 산란을 유도하고, 이는 중정의 몽환적이고 신비로운 분위기를 살린다.
-창과 벽 1층에서 외벽은 모두 솔리드한 벽으로 구성하고, 중정 쪽으로는 모두 창을 뚫었다. 이를 통해 외부로부터 내부를 보는 시선을 차단하며 사생활을 보호하고, 1층에 거주하는 내부인의 시선이 자연스럽게 중정쪽으로 향하도록 유도하였다. 2층에서 창은 햇빛을 고려하여 뚫었는데, 이로 인해 아침에는 주방에 햇빛이 들어오고, 오후에는 침실과 주방에 햇빛이 들어오며 침실과 주방이 각각 다른 느낌의 채광을 받는다. 창은 모두 전창으로 뚫었는데, 이는 미니멀리스틱한 분위기를 주기 위해서이다.
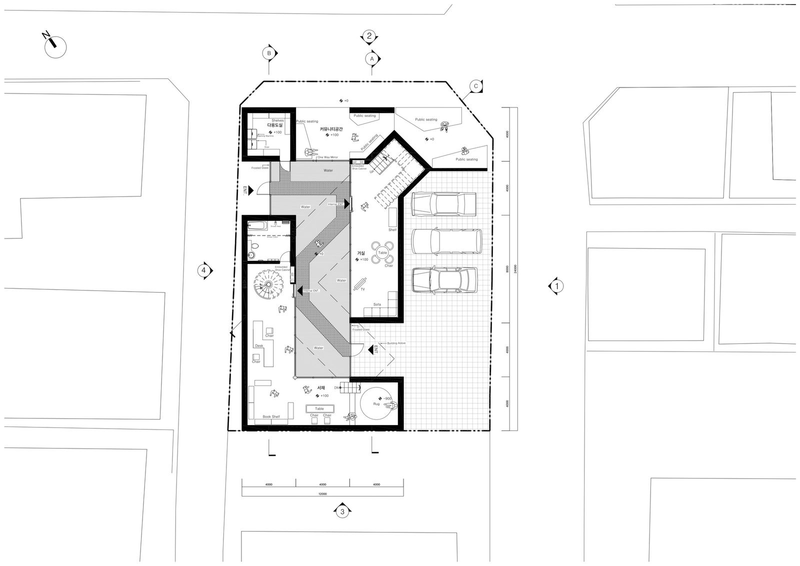
-프로그램 건물의 프로그램은 총 5가지로 구성되어 있다. 중정, 서재, 거실, 커뮤니티 공간, 2층.
1. 중정 외부 현관을 통해 집을 들어오면, 가장 먼저 접하게 되는 프로그램이 중정이다. 중정은 동선을 따라 중앙이 현무암 재질의 돌길로 이루어져 있고, 그 주변을 물로 구성하여, 사람이 돌길을 따라 지나가며 중정의 분위기를 느낄 수 있도록 유도하였다.
2.서재 중정의 돌길을 따라 걸으면 처음으로 마주하는 내부공간은 서재이다. 서재에서 중요하게 볼 것은 시퀀스와 행동 유도, 특정 공간에서의 장면이다. 서재는 업무 공간과 책장 공간, 두 가지 형태의 책읽는 공간으로 나뉜다. 서재에 들어가면, 업무공간을 거쳐 책장을 지나야만 책읽는 공간으로 들어갈 수 있도록 동선을 고정했는데, 이를 통해 책장에서 책을 꺼내 책을 읽는 공간에서 책을 읽은 뒤, 다시 나올 때는 책장에 책을 넣고 나올 수 있도록 행동을 유도하였다. 책 읽는 공간은 2가지 형태이다. 1번 공간에서는 중정을 바라보도록 가구를 배치했는데, 때문에 여기서 중정과 그 너머의 커뮤니티 공간, 너머 건물 외부의 도로와 공원까지 한 눈에 볼 수 있도록 설계하였다. 2번 공간에서는 1m 내려가 있는 공간으로 만들었는데, 공간을 1m내린 뒤 사방을 벽으로 막고, 천창을 뚫어 이 공간에 있는 사람이 천창을 바라보도록 유도하였고, 가구는 러그 하나만 두어, 그 위에서 앉아서 책을 보거나 누워서 책을 보도록 유도하였다. 서재에는 내벽을 두지 않았는데, 이는 서재를 open space로 두고, 책장 등의 가구를 벽 대신 이용하여 매스감을 살리면서도 공간을 구분하도록 설계하였다.
3. 거실 서재에서 나와 돌길을 따라 걸으면 다음 만나는 공간이 거실이다. 서재가 조용하게 책을 읽거나 업무를 하는 공간이라면 거실은 사람들과 대화하고, 음악을 듣거나 ott를 보는 공간이다. 게스트를 초대하거나 외부인이 들어온다면, 응대를 하는 동적인 공간에 가깝다. 만약 게스트를 초대했을 때, 게스트가 거실에 들어오기 위해서는 현관에서 중정을 거쳐 거실로 들어와야 한다. 중정을 지날 때, 굳이 동선을 돌아오며 중정의 분위기를 느끼고 들어올 수 있도록 유도하였다.
4. 커뮤니티 공간 주택이 세워질 위치에는 원래 편의점이 있었다. 그 편의점에서 사람들은 앉아서 쉬거나 대화를 나누는 등 사람들 간의 커뮤니케이션이 이루어지고 있었기 때문에, 이런 편의점의 기능을 유지하고자 커뮤니티 공간이라는 프로그램을 만들게 되었다. 커뮤니티 공간은 외부와 내부, 두가지 공간으로 나뉘는데, 이는 같은 프로그램 안에서도 다양한 경험을 유도하기 위함이다. Public Seating은 일반적인 직사각형 형태가 아닌 다각형 형태의 가구를 두었는데, 이는 주변 환경의 건물을 다이어그램화하면 다각형인 점에서 착안해 주변환경을 커뮤니티 공간으로 끌어오고자 하였고, 다각형의 가구를 배치해 사람들의 동선을 비직선화하고자 하였다.
5. 2층, 침실과 주방, 발코니 2층은 침실과 주방을 두었다. 그리고 발코니를 2개 두었는데, 발코니를 통해 외부인과 소통을 하거나 휴식을 취하는 등의 행동을 취할 수 있다.
-입면 주택은 전체적으로 미니멀리스틱하게 설계를 하였다. 입면에서도 이 기조를 반영하였는데, 건물의 벽을 흰색 페인트로 칠하고, 창을 천장까지 올림으로써 미니멀리스틱함을 유도하였다.
크리에이티브 커먼즈 라이선스
이동근의 저작물인 이 저작물은 크리에이티브 커먼즈 저작자표시 4.0 국제 라이선스에 따라 이용할 수 있습니다.
Copyright © uosarch.ac.kr., Some rights reserved.
고장 및 불편 신고