"구체화하기"의 목표는 과제1에서 스터디했던 '풍년빌라스러움'을 구현하기였다. 풍년빌라는 좁은 대지에서 어쩔 수 없이, 다양한 가구가 엇갈려 필연적으로 쌓여질 수 밖에 없었던 건물이라고 생각하기 쉽다. 그런 대지가 아니여도 충분히 풍년빌라스러움을 구현할 수 있음을 보여주고 싶었기에 이 주제를 택했다.
여러 번의 사이트 답사를 통해 만든 최종 콜라쥬, 매핑과 답사 사진들이다. 사이트가 높은 아파트들에 둘러쌓인 분지와 같다고 느껴져 이를 표시하고 사이트와 사이트 주변에 위치한 편의점, 음식점, 술집, 버스 정거장 등과 같은 요소들을 표시했다. '최소의 집' 이기에 3개의 가구가 각각 studio / LDK / bedroom을 가지고 있어야 했으며 이런 각 공간들이 '풍년빌라스럽게' 연결되는 것을 목표로 삼았다. 여러 번의 사이트 답사 중, 운이 좋게 실제 사이트 안에 있는 주택에 초대를 받아 들어가보게 되었다. 그 과정에서 기존 대지에 존재하던 반지하의 차고, 중요한 식목, 존재하는 길을 알게 되었고, 주변 CU에서 술을 마시며 대화를 나누는 사람들을 발견했다. 그렇기에 주민들의 커뮤니케이션 공간인 바 + 풍년빌라스러움 + 기존 대지와의 연속성 이라는 제약 조건을 가지고 설계 과정에 들어갔다.
초반 단계에서 캐드 파일을 통해 대략적으로 위치를 표시한 후, 이 위치를 토대로 이후의 설계를 진행했다.
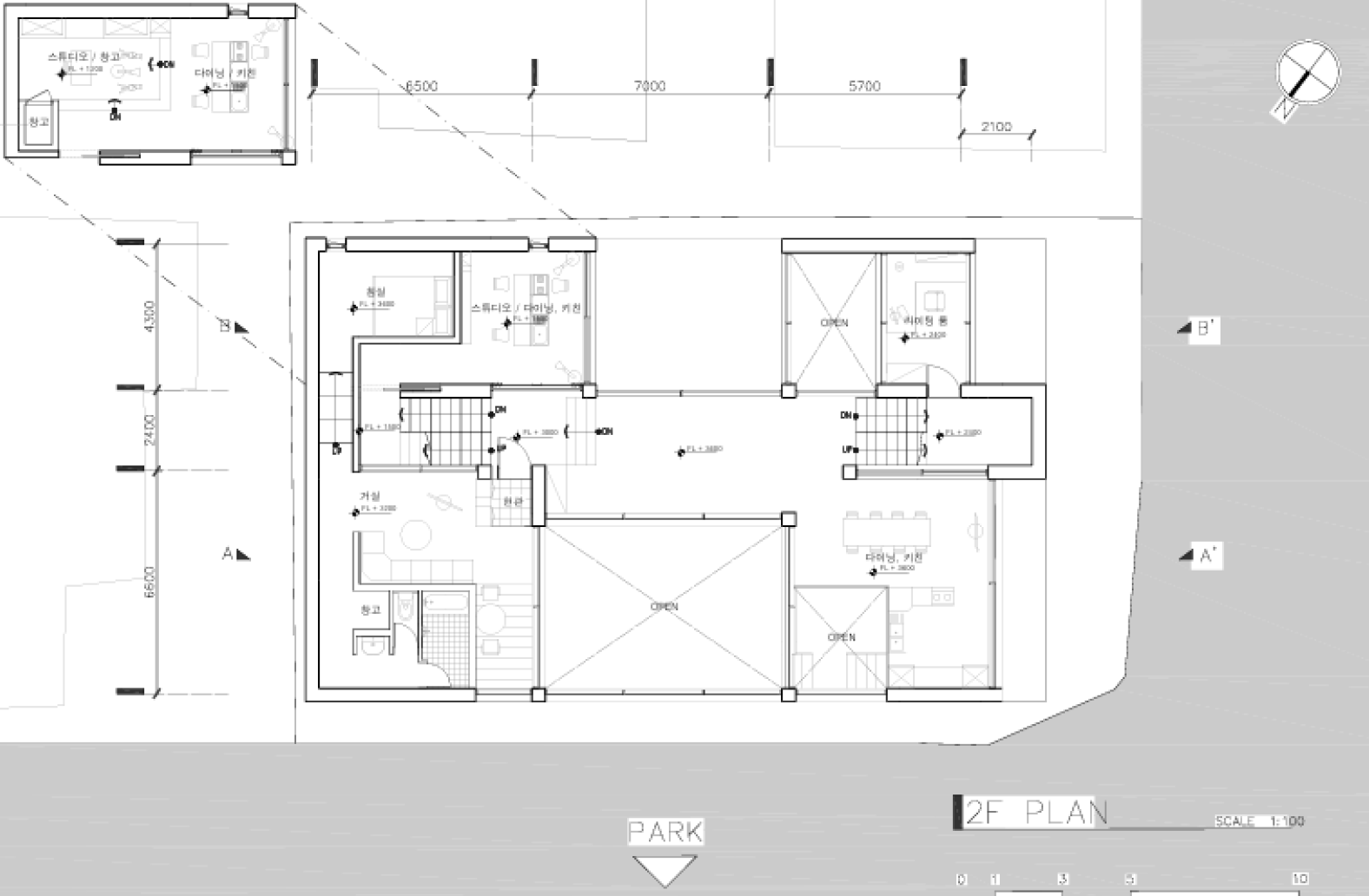
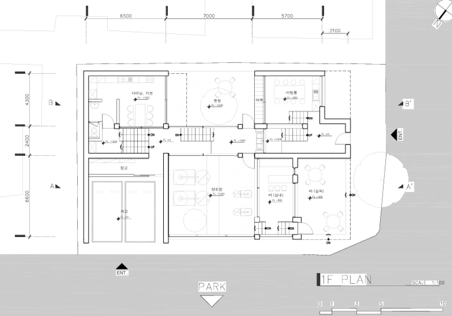
위는 스터디 과정에서의 평면이다. '풍년빌라스러움'을 구현하기 위해 공간의 위계/시퀸스에 집중했다. 그렇기에 다양한 케이스를 스터디하며, 평면에 대해 고민했다. 기존에 지키고 싶다고 생각했던 나무, 길을 그대로 보이드로 둘 것인가 / 온실 같은 스튜디오 공간을 씌울 것인가 / 어디에 각 공간을 배치할 것인가 등을 고민하며 평면 스터디를 진행했다. 그 과정에서 바 공간은 사람들에게 open되기 쉬운 사거리 쪽으로 고정이 되었고, 중정 공간은 보이드로 / 길쪽은 온실과 같은 유리 블럭이 덮어지는 형태로 기존 대지와의 연속성을 유지하려 했다. 각 가구의 공간 또한 위계를 고려해 스튜디오 -> ldk -> 침실과 같은 시퀸스를 유지하려 했다.
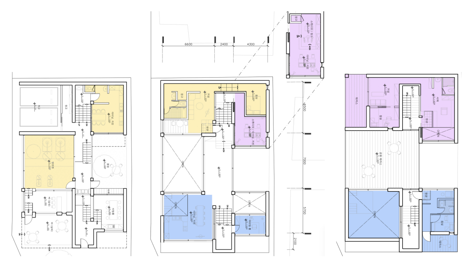
어느 정도 완성된 단계다. 3개의 가구를 '술'과 연관이 있는 양조인 부부 (주황색) 주류 영상 크리에이터 (보라색) 주류 에디터 (파란색) 로 맞추고, '풍년빌라스러운' 공간 위계를 유지하는 동시에 각자에게 맞는 공간을 배치하려 했다. 기존 지하 레벨을 중정/양조장까지 깊게 파고 들게 해 선큰 중정을 만들고 바의 레벨을 주변보다 조금 낮춰 '들어오고 싶은' 느낌을 주려 했다.
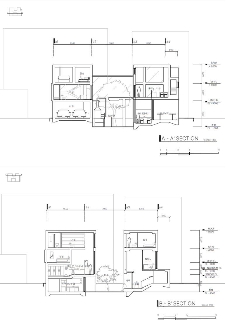
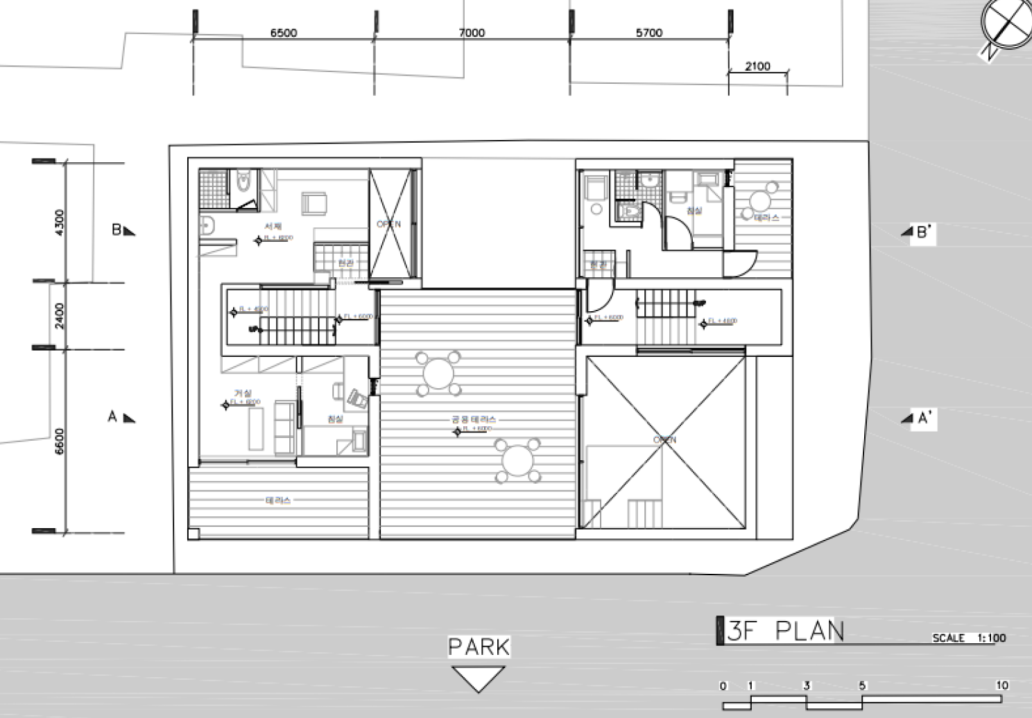
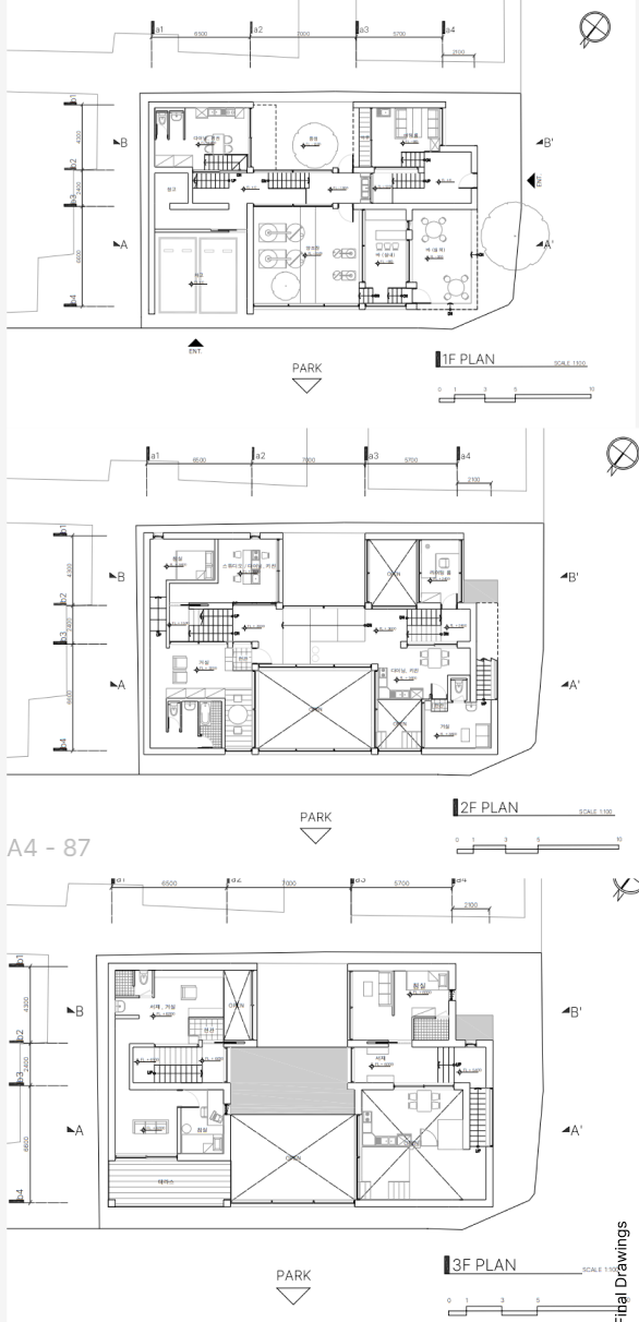
최종 평면에서는 에디터의 3층 공간이 원룸 같다는 생각이 들어 오픈 다이닝/키친에서만 에디터의 사적 공간으로 이동하게 하는 계단을 추가했다. 아래는 중간 발표에서 사용한 최종 드로잉들과 다이어그램이다
+) 과제 2가 끝난 후, 기존 설계를 디벨롭할 시간이 생겨 디자인을 디벨롭했다. 라이노를 통해 모델링을 해 다양한 다이어그램을 만들고 입면에 대한 고민과 도면의 디테일적인 부분을 챙겼다. 바뀐 모형도 새로 제작했다.
레벨이 다른 입체적인 슬라브들 간의 관계가 입면상으로 표현되었으면 했다. 마지막에 추가된 계단이 이를 방해했기에 과감히 계단 제거하고 이에 따라 평면도 수정했다. 아래는 3차 과제 시간에 디벨롭한 드로잉들과 모형이다.
크리에이티브 커먼즈 라이선스
백종헌의 저작물인 이 저작물은 크리에이티브 커먼즈 저작자표시 4.0 국제 라이선스에 따라 이용할 수 있습니다.
Copyright © uosarch.ac.kr., Some rights reserved.
고장 및 불편 신고