첫 시작은 사이트 답사다. 사이트 B의 cu의 테라스에서 사람들이 담소를 나누고 있는 모습이 보기 좋다고 느꼈고, 이것이 과제2의 첫 시작점이 되었다. 처음으로 떠올린 것은 계단식 구조로 건물을 만들어 보는 것이었다. 이렇게 할 경우 계단 윗부분과 아랫부분 중 한 부분을 선택하게 되면 공원쪽을 바라보지 않는 쪽은 건물로 막혀있는 사이트 B의 특성상 한쪽의 공간이 죽어버린다고 생각했다. 한쪽만 쓰는 것도 방법일 순 있겠지만 나는 한쪽만 사용한다면 건물이 단순해지며, 둘 다 쓸 수 있는 공간이 한쪽만 쓰는 공간보다 더 재밌는 공간이 나오지 않을까라는 생각으로 둘 다 쓸 수 있게 만드는 것을 목표로 잡고 과제를 진행해 나갔다.
정주 인원은 목수와 작가 부부, 초등학생 아이로 설정했다.
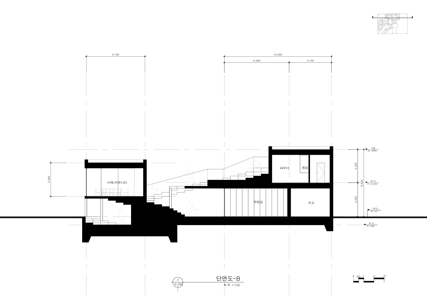
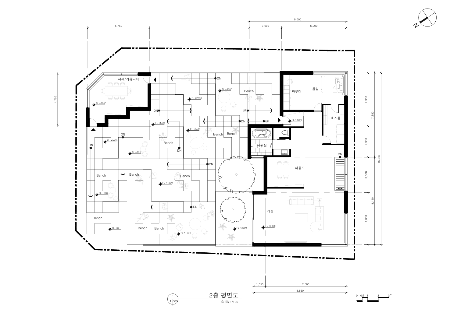
여기서 고민 끝에 내린 결론은 공원을 바라보는 부분 중 한쪽 모퉁이를 들어올려서 계단구조를 만드는 것이었다.
들어올린 부분에 작가의 독립공간이자 주민들의 커뮤니티 공간이 될 수 있는 부분을 배치하고 그 아래부분도 동네 주민들이 사용할 수 있는 공간으로 만들면 설득력이 생길 것이라고 판단했다.
가장 중요한 계단 부분은 스케치업으로 여러가지 스터디를 종합한 끝에 중간중간에 벤치와 동네 주민들이 사용할 수 있는 공간이자 목수의 가구들을 배치 할 수 있는 공간을 만들었다.












