ㅣ본모형
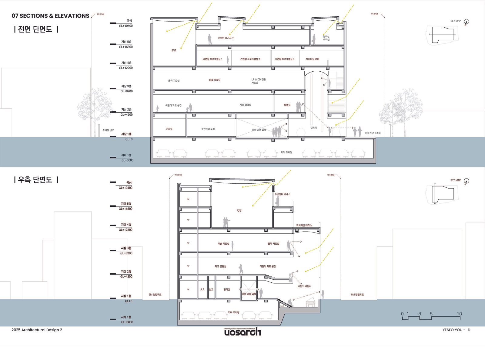
본 설계는 종암동 ‘명동골목’이 지녔던 과거의 활기와 기억을 오늘의 지역에 다시 연결하는 데서 출발한다. 한때 사람과 소리, 빛으로 가득했던 골목은 현재 조용한 주거지로 변화하였으며, 이에 본 도서관은 단순한 지식 저장소가 아닌 종암동의 빛과 소리를 담아내는 복합 문화 거점으로 재해석되었다. 시간의 흐름 속에서 변화해온 골목의 정체성을 건축적 언어로 풀어내며, 도서관은 지역의 기억을 수용하고 다시 확산시키는 ‘선물 같은 장소’로 계획되었다. 저층부에선 외부 공간과 실내 공간은 경계 없이 이어지며, 사용자는 골목에서 건물 내부로, 다시 수직적 흐름을 따라 이동하며 다양한 공간 경험을 누리게 된다. 종암도 도서관은 누구에게나 열려 있으면서도 각자의 속도로 머물 수 있는 장소를 지향한다. 이를 통해 본 설계는 종암동 일상 속에 자연스럽게 스며드는 공공 건축으로서, 지역의 과거와 현재, 그리고 미래를 잇는 문화적 플랫폼이 되고자 한다.
ㅣ입면상세 모형
ㅣ포트폴리오
l입면 상세도
크리에이티브 커먼즈 라이선스
유예서의 저작물인 이 저작물은 크리에이티브 커먼즈 저작자표시 4.0 국제 라이선스에 따라 이용할 수 있습니다.
Copyright © uosarch.ac.kr., Some rights reserved.
고장 및 불편 신고