두 번째 과제는 과제1에서 추상화한 것들을 구체화하는 활동이었다. 구체화뿐만아니라 직접 페르소나를 설정하여 그 인물들이 살 공간을 설계하는 것 또한 과제2에 포함이 되었다. 우리가 설계할 주택의 사이트는 간데메 공원 주변 세 곳이었다. 과제2를 진행하기에 앞서서 먼저 사이트 답사를 통하여 사이트의 특성들에 대해 알아보고자 하였다.
사진에 보이는 관리사무소가 위치한 곳이 사이트C이다. 다른 사이트와 달리 C는 공원 내부에 위치하여 타 사이트들에 비해 조건이 많이 타는 곳이었다. 나의 래퍼런스가 볼트하우스였기 때문에 볼트의 기하학적 구조들이 공원과 잘 맞을 것이라고 생각해서 나의 사이트는 C로 선정하였다. 사이트 선정 후, 페르소나를 정해야 했다. 자유도가 매우 높았기 때문에 페르소나를 설정하는 것에 있어서 고민이 매우 많이 됐고, 어려움이 있었다. 많은 고민 끝에 나의 페르소나는 다음과 같이 정해졌다.
나의 페르소나를 뮤지션들로 정한 이유는 사이트를 C의 특징인 접근성 및 노출의 정도를 어떻게 하면 잘 살릴 수 있을지 에 대해 고민하다가 사람과 건축물 사이의 매개체를 노래로 하면 좋겠다는 생각이 들었기 때문이었다.
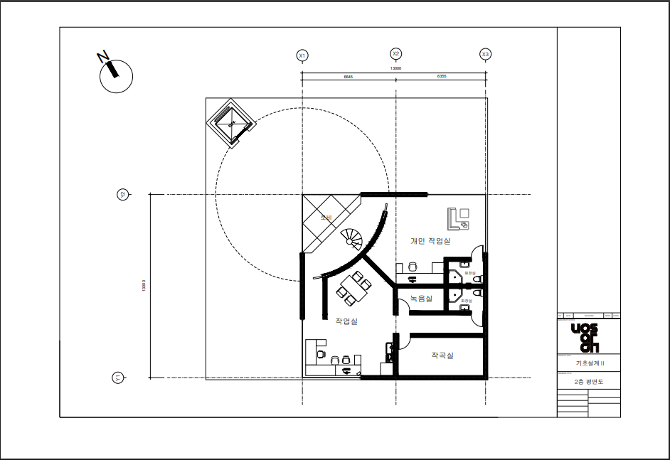
위 사진들은 내가 설계한 집의 평면도 및 단면도이다. 사이트의 레벨을 낮춰서 그 곳에 작은 노천극장을 배치해 뮤지션들이 공연을 하거나 평상시에는 사람들이 이 극장을 휴식 공간으로서 이용할 수 있도록 하였다. 나의 건물의 특징은 1층에 위치한 노천극장뿐만아니라 1층에 있는 엘레베이터를 통해서 내부에 진입할 수 있다는 것이다. 즉, 이 건물의 동선은 1층의 엘레베이터->3층 휴식공간 ->2층 작업 공간 이라는 아주 특이한 동선이다. 또한 1층의 노천극장은 콘크리트 벽을 가지며 그래피티가 그려져 있어 매우 힙한 느낌을 준다는 특징도 있다. 이러한 특징들로 보았을 때, 이 건물은 주변 공원에 대해서 자연스러우면서도 부자연스러운 느낌을 준다. 기하학적인 건물의 외형이 멀리서 봤을 때 자연스러운 느낌을 주지만, 이 건물을 하나하나 뜯어봤을 때, 주변 공원과는 하나도 안 어울리는 그래피티나 힙합, 콘크리트 벽 등 때문에 매우 부자연스러운 느낌을 준다.
크리에이티브 커먼즈 라이선스
김성주의 저작물인 이 저작물은 크리에이티브 커먼즈 저작자표시 4.0 국제 라이선스에 따라 이용할 수 있습니다.
Copyright © uosarch.ac.kr., Some rights reserved.
고장 및 불편 신고