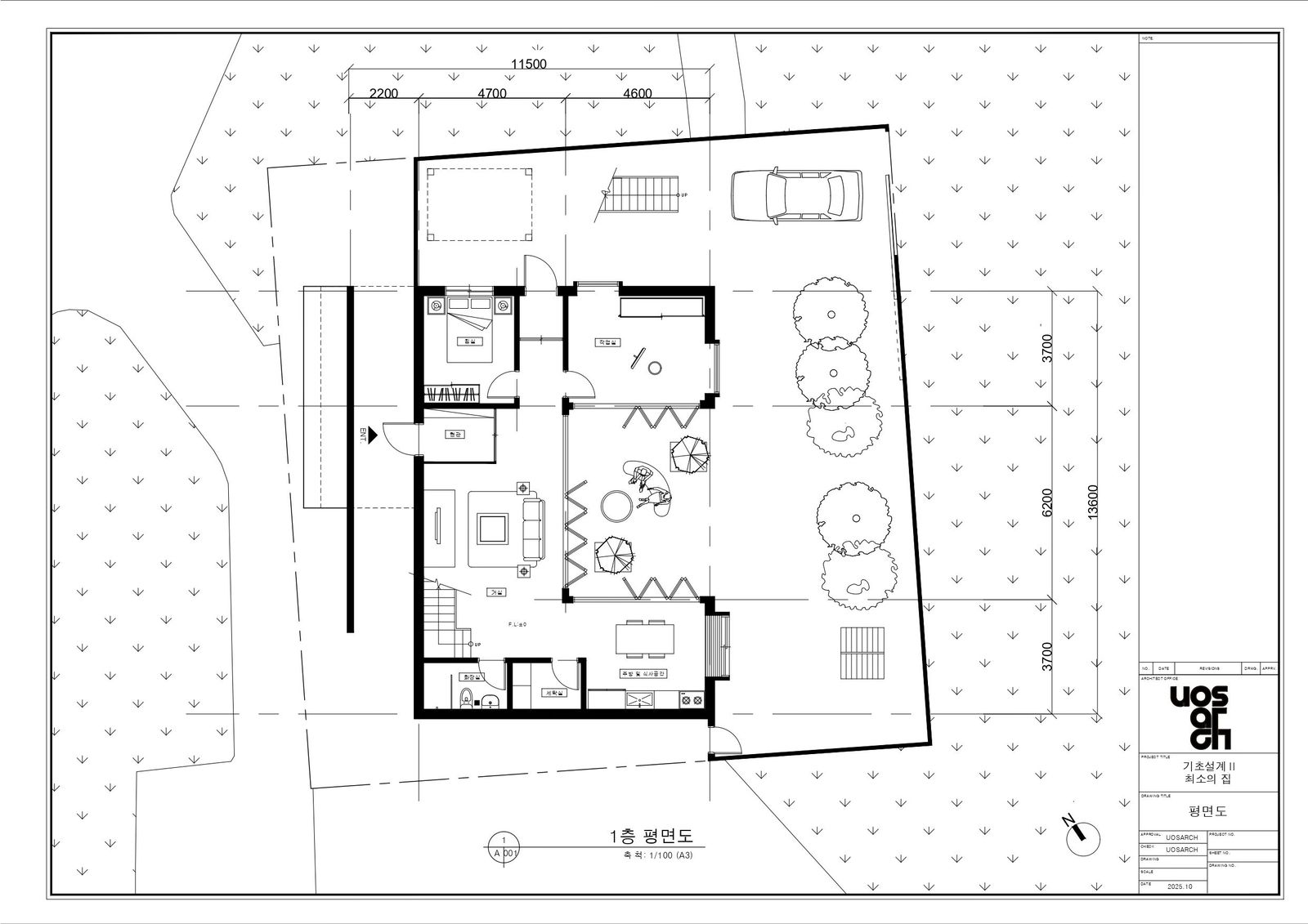
나는 site C를 선택해 과제를 진행했다. 다른 사이트들과 다르게 주택들이 서로 붙어 있지 않고 바로 앞에 공원이 위치해 있어 자연과 가까운 관계를 형성할 수 있다고 생각했기 때문이다.
설계를 진행하면서 공원 쪽으로는 사람들의 동선이 활발해 창을 내기가 어렵다는 점을 알게 되었고 그래서 프라이버시는 보호하면서도 자연과 단절되지 않는 주택을 만들자는 개념으로 과제를 시작했다.
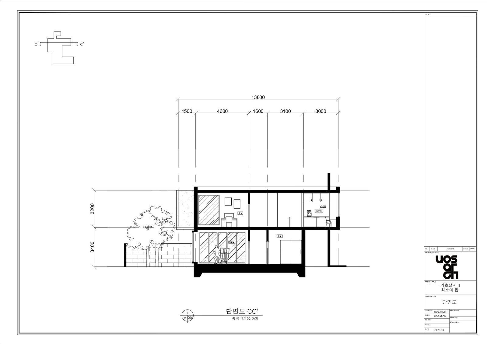
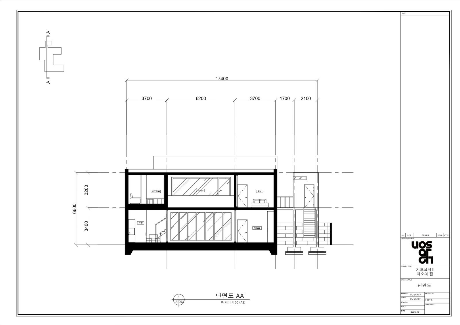
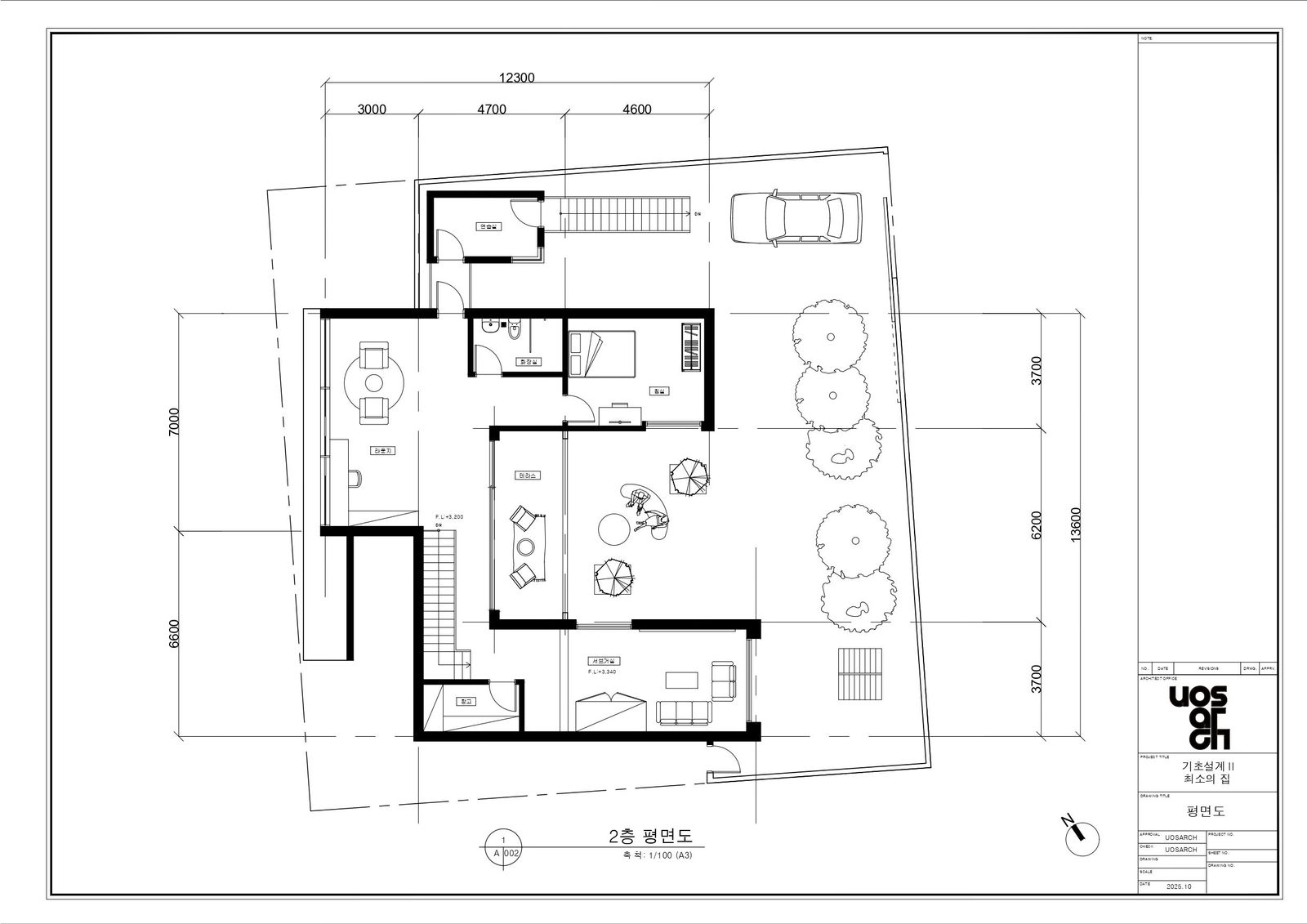
정주인원은 노부부와 그들의 딸, 그리고 반려견 한 마리이다. 노부부는 70대 초반으로, 할아버지는 화가이며 대부분의 시간을 작업실에서 그림을 그리며 보낸다. 할머니는 무직이시고 두분 모두 외부 교류를 크게 원하지 않아서 주택안의 노부부를 위한 공간이 필요하다. 딸은 30대 후반의 바이올리니스트이자 대학교 조교수로, 개인 레슨도 주택에서 진행한다. 따라서 노부부와는 분리된 독립적 공간이 필요하다. 마지막으로 8살 반려견은 가족과의 교류가 활발하면서 답답하지 않게 느낄 정도의 공간이 필요하다. 이런 조건을 바탕으로, 공원 쪽의 시선을 차단하면서도 자연을 실내로 들이는 방법을 고민하다가 원을 등진 디귿자 형태의 중정형 구조하면 좋겠다 라는 생각이 들어 이 형태를 큰 덩어리로 설정해 설계를 시작했다.
1층은 노부부를 위한 공간, 2층은 딸을 위한 공간으로 분리를하였고 딸이 연습하고, 레슨을 할 공간도 2층과 접근성을 높였다.
이 주택의 가장 큰 특징 중 하나인 돌출과 내입은 공간의 도출과 내입으로 큰 개념부터 창까지 적용해 작은 개념으로도 존재한다. 또 다른 특징은 주택 전면부에 위치한 아트월이다. 이 공간에서는 화가인 할아버지의 작품 전시와 함께, 딸과 딸의 레슨생들이 참여하는 정기 연주회가 열린다. 아트월은 외부로는 주택의 정체성과 존재감을 효과적으로 드러내는 장치인 동시에, 내부의 사적 영역을 보호하는 역할을 한다.
크리에이티브 커먼즈 라이선스
인주혜의 저작물인 이 저작물은 크리에이티브 커먼즈 저작자표시 4.0 국제 라이선스에 따라 이용할 수 있습니다.
Copyright © uosarch.ac.kr., Some rights reserved.
고장 및 불편 신고