나는 이번 과제 2에서 Site B를 선택했다. 별다른 이유는 없었고 처음에는 가장 규모가 커서 활용할 공간이 많을 것 같아 골랐다. 공원을 바라보고 있고 거리와도 인접해있는 공간에 누가 살아야할지 어떤 사람과 몇명이 있어야하는 지 생각하던 중 동대문구에 주로 어떤 사람이 사는지 조사해보았다. 다양한 분야의 사람들이 거주하고 있는 도중 예술가라는 키워드가 가장 눈에 들어왔고, 문득 제가 과거에 갔던 타투 스튜디오가 떠올랐다.
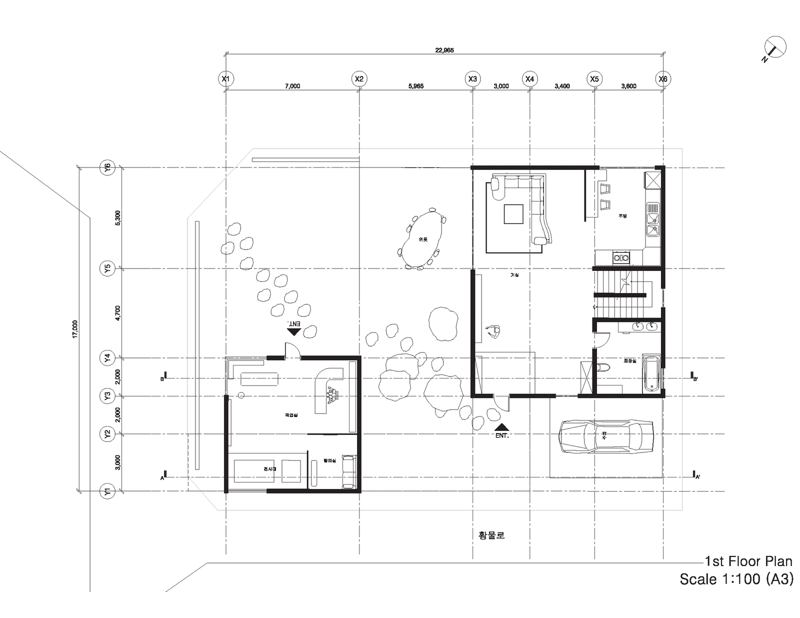
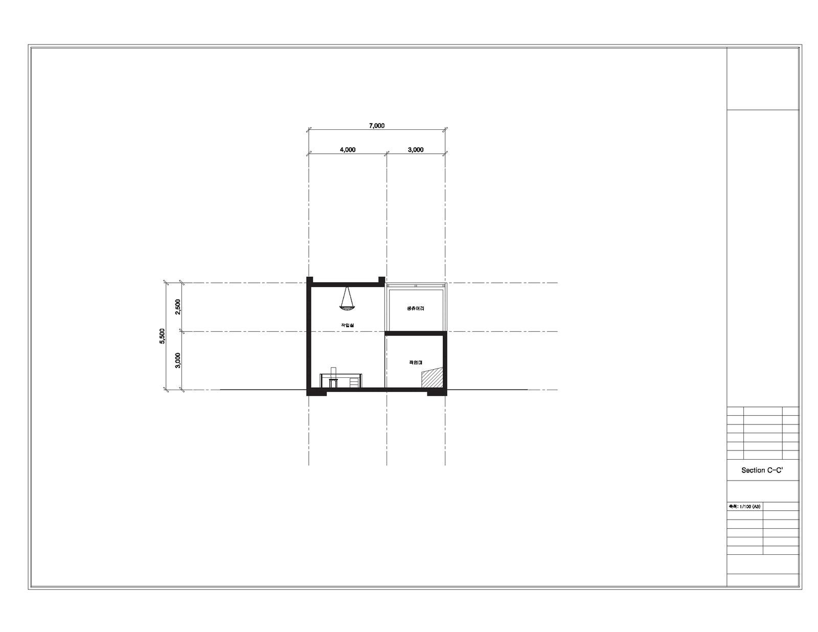
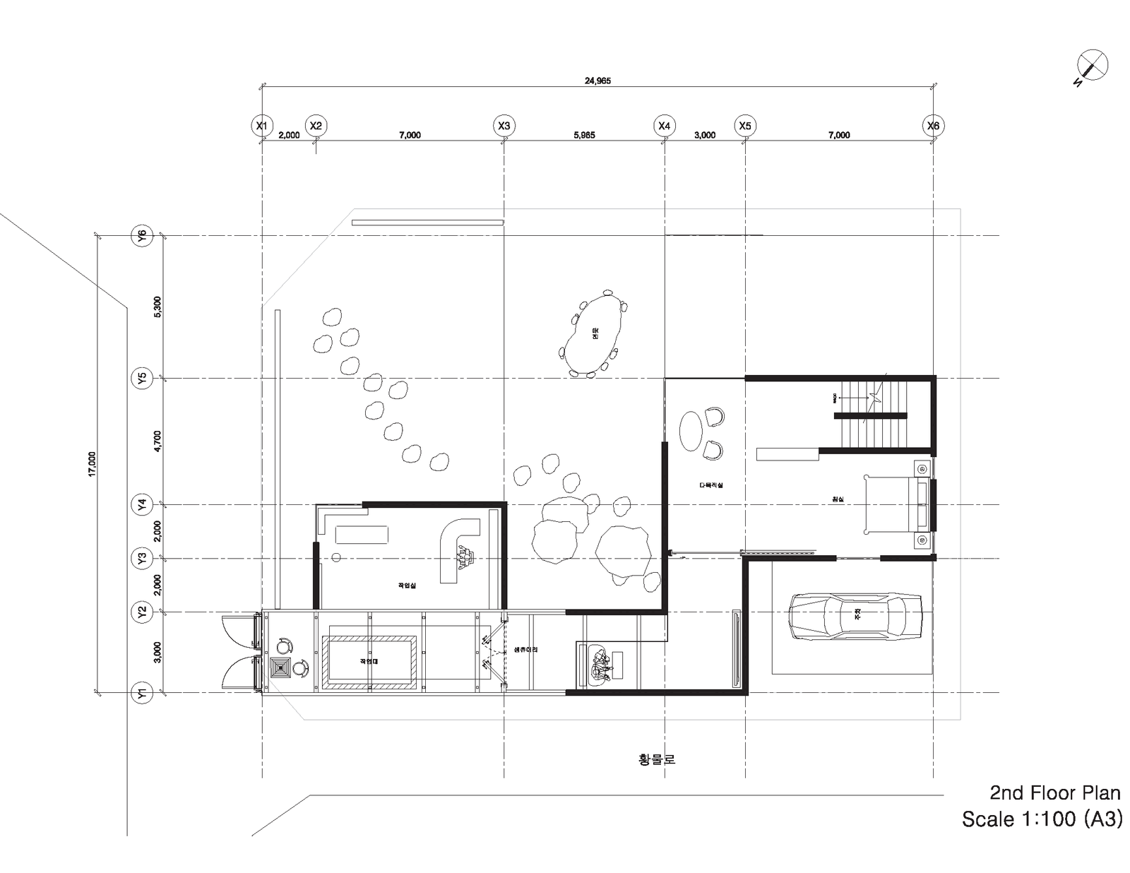
사람들은 자산의 일상의 흔적들 중에서 소중하거나 본인에게 의미가 있는 것들을 몸에 남기고싶어한다. 그리고 타투이스트가 그 작업을 실행해준다. 이런 관점에서 나는 타투이스트가 사람들의 일상을 관찰할 수 있는 공간이 생겼으면 좋겠다고 생각했다. 또한 직업 특성상 거주지와 작업실이 별개로 분리되어야 한다고 느꼈다. Site B를 십자가 모양으로 그어 네 공간으로 나누었을 때. 사람들을 관찰할 수 있는 공간 ('생츄어리'라고 부르겠다)은 아마 공원과 가까운 쪽이 될 것이고, 사생활이 대부분인 거주지는 가장 안쪽자리가 될 것이다. 그러다 작업실과 생츄어리가 겹칠 것 같아서 작업실의 층고를 높여 생츄어리에서 공원도 볼 수 있고 자신의 작업실도 관찰할 수 있게 만들어보았다.
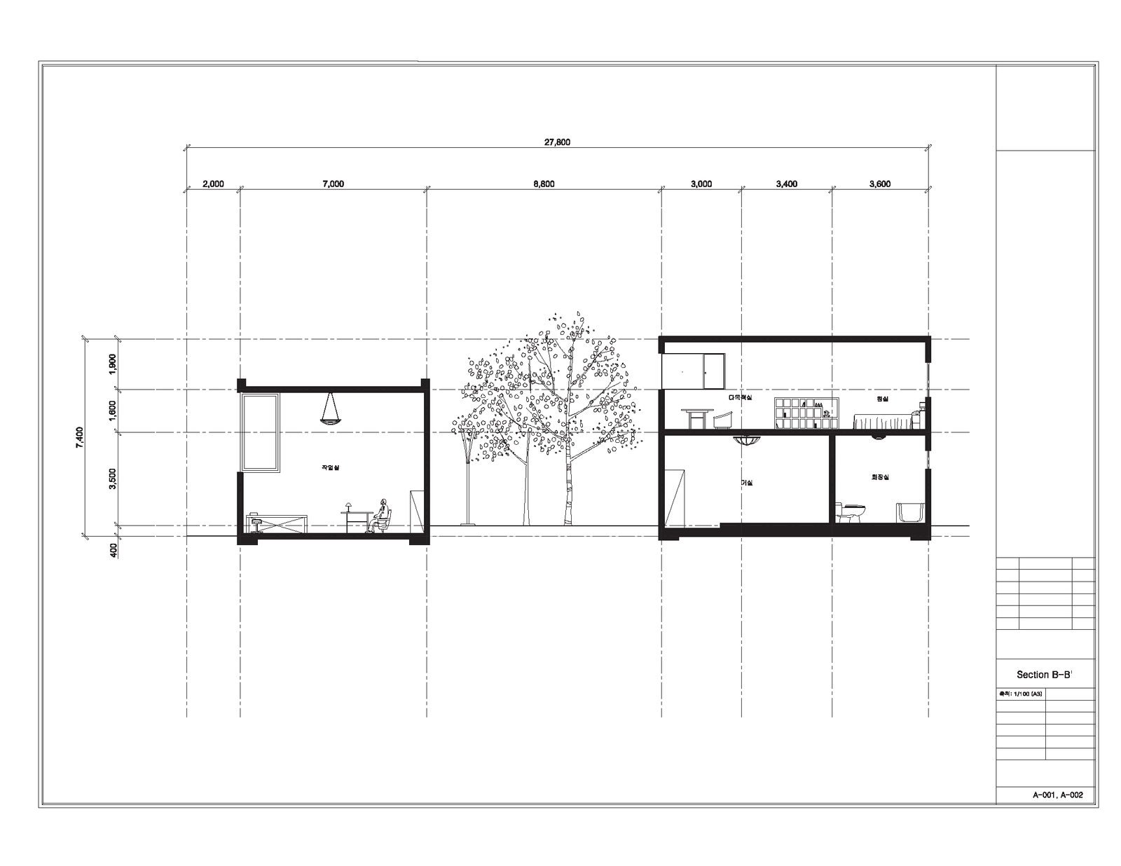
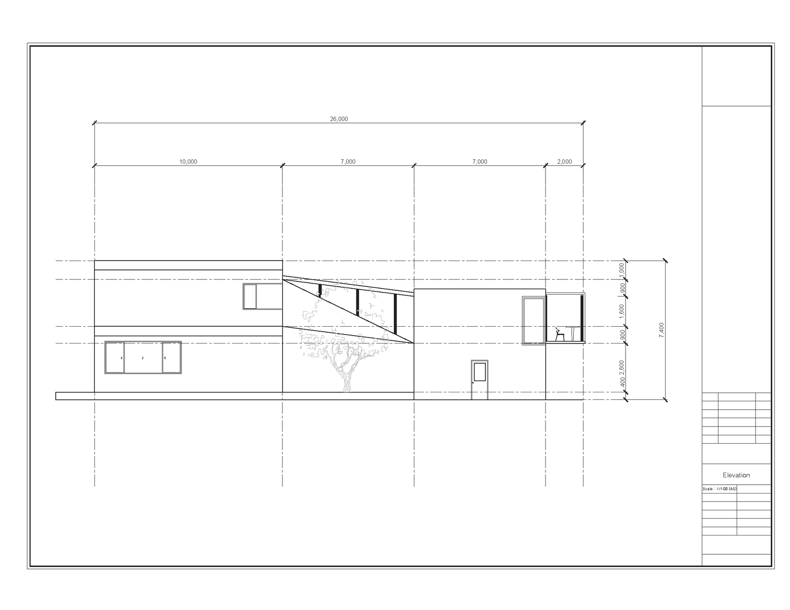
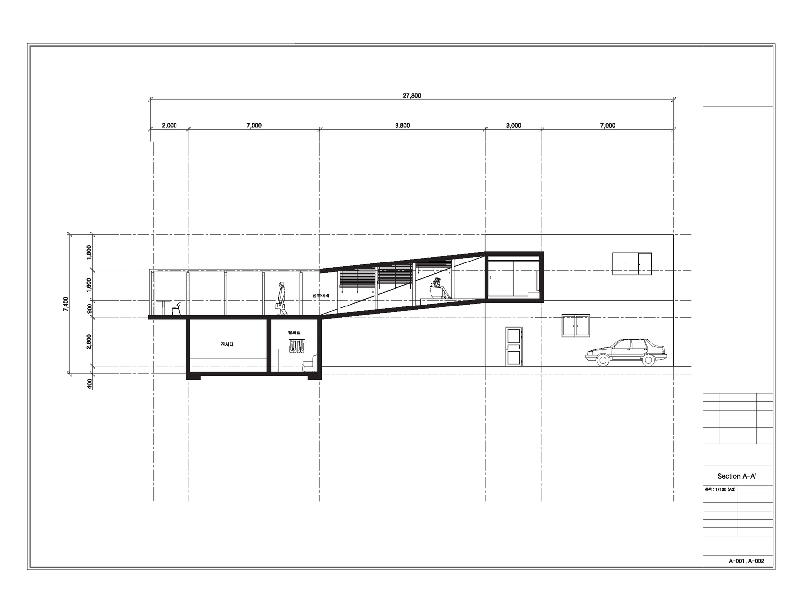
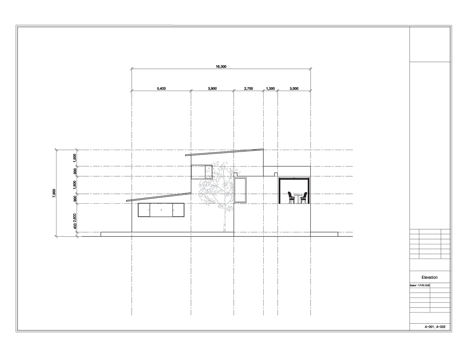
여러가지 스터디 모형을 만들어본 결과 가장 중요한 장소는 말 그대로 생츄어리가 되었고, 실내에서 뻗어나와 바깥까지 볼 수 있는 이 공간의 성격을 규정해야했다. 가장 바깥쪽인 부분은 마치 테라스처럼 실외공간으로 보이지만, 더욱 안쪽으로 들어갈수록 실내 공간의 성격을 띠었다. 그래서 처음에는 옆면의 유리 벽의 형태를 넓혀 실내와 실외의 흐름을 자연스럽게 느낄 수 있게 만들었다. 또한 공간의 흐름을 자연스럽게 느낄 수 있지만 공간의 성격을 나누기 위해 유리문을 달았고, 생츄어리의 실내 부분에서는 거주자가 개인 취미를 즐길 수 있는 미니 영화관을 만들고 블라인드를 설치 해보았다. 실외 부분에서는 바닥을 유리로 만들어 작업실 내부가 잘 보일 수 있게 형성하였다. 바닥에서는 자신의 타투 도안이나 잉크, 바늘 등을 볼 수 있다. 자신의 시선의 흐름을 본인 작품과 예술에 보이게 하기 위해서이다.
이렇게 도면을 다 그리고 난 후 최종 페널을 만들 때, 생츄어리의 시선과 공간의 흐름에 집중하여 동선을 메인으로 장면을 네 가지로 나누어보았다. 거주자가 이 공간에서 무엇을 느낄 수 있는지 언제 이 공간에 오는지 등을 가장 중요하게 생각해 아래 사진처럼 가운데에 있는 도면을 중심으로 시퀀스를 나타보았다. 이번 과제 2를 하면서 공간 성격을 어떻게 나눌 수 있는지, 어떻게 더 효율적으로 드러낼 수 있는 지 배울 수 있었다. 하지만 공간의 흐름에만 신경쓰다보니, 거주자가 생츄어리 실외 부분에서 자신의 작업실을 보는 그러한 과정을 자세히 다루지 않아 아쉬운 점이 있었다. 다음 과제 3에서 그 부분을 보안해보겠다.
크리에이티브 커먼즈 라이선스
박시우의 저작물인 이 저작물은 크리에이티브 커먼즈 저작자표시 4.0 국제 라이선스에 따라 이용할 수 있습니다.
Copyright © uosarch.ac.kr., Some rights reserved.
고장 및 불편 신고