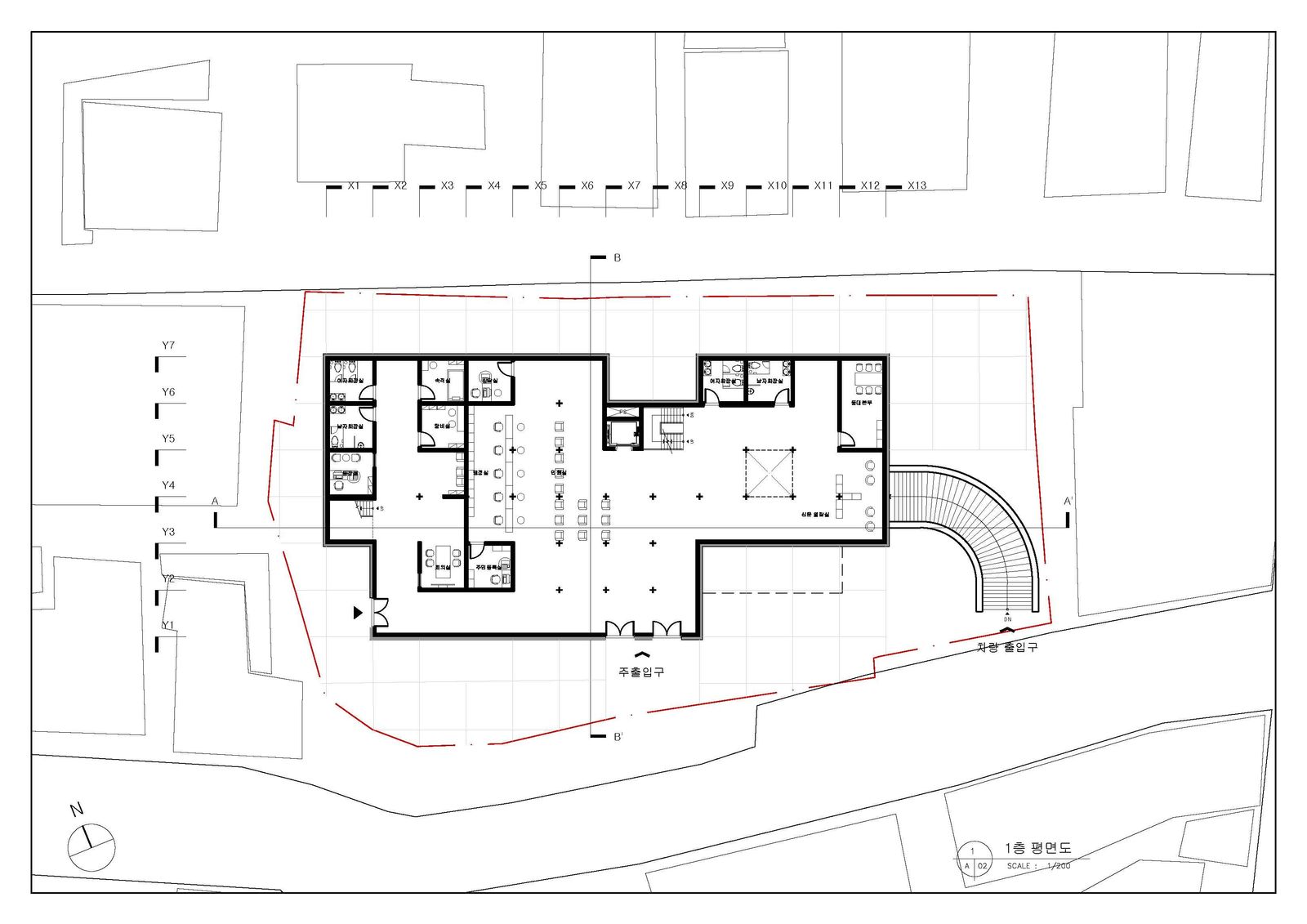
종암동 사이트의 모습에서 공간의 스케일에 따른 군집의 스케일 차이를 발견할 수 있었다. 이에 착안하여 군집의 스케일 분포를 공간의 스케일로 전환하여 공간의 최소단위인 '방'이라는 개념을 떠올리게 되었다. 군집의 크기뿐만 아니라 어떤 행위가 일어나는지에 따라 공간의 성격과 공공성이 정해진다. 그에 따른 평면 구성과 동선 조직을 통해 하나의 방 또는 방들의 집합으로 이루어진 건물로 나아갔다. 방들은 각자 독립적으로 존재하기도, 서로 이어지기도 한다. 이러한 구성이 입면에서도 드러날 수 있도록 방 안에서 일어나는 행위가 곧 입면 디자인을 이룬다. 이를 강조하기 위해 파사드 디자인에 프레임을 덧대었다.
크리에이티브 커먼즈 라이선스
조혜원의 저작물인 이 저작물은 크리에이티브 커먼즈 저작자표시 4.0 국제 라이선스에 따라 이용할 수 있습니다.
Copyright © uosarch.ac.kr., Some rights reserved.
고장 및 불편 신고