과제 3은 과제 2에서 설계한 주택을 한 장의 그림으로 표현하는 것이었다. 난 이번 과제에서 가장 중요한 부분은 나의 주택을 가장 직관적으로 표현하는 것으로 여겼다. 논리적인 설명이 없이도 나의 의도가 충분히 드러나는 방식을 사용해보고 싶었다 그렇다면 나의 그림은 무엇을 담아야 할까?
난 이 주택의 본질을 담는 것이 중요하다고 생각했다. 주택의 본질이란 그 공간이 그 안의 사람을 행복하게 만드는 방식에서 드러난다고 보고 있다. 내가 설계한 주택은 장애인과 노인인 노부부가 다른 두 청년과 함께 코하우징을 하며 살아가는 공간이다. 난 그 안에서 노부부가 그들의 제약을 딛고 지극히 일상적인 생활을 하길 원했다. 그리고 정주인원 간 활발한 교류와 행동의 자유로움이 그걸 가능케 한다고 생각했기에 이것에 집중했다. 그렇기에 과제 3에선 정주인원 간 교류와 이들의 자유, 그리고 일상을 표현하기로 마음먹었다.
일상은 장면의 연속이라고 생각한다. 한 장소에서 기억하는 장면이 많고 다채로울수록 그곳에서의 일상은 풍요롭다고 할 수 있다. 나도 마찬가지로 이 주택에서 많은 장면을 의도했기에 이것을 최대한 많이 담아보려 했다. 오리엔테이션에서 보았던 소쇄원도가 생각났다. 많은 장면을 글로써 남기기 보단 그림을 통해 한눈에도 와닿게 표현하길 원했다.
그러나 단순히 많은 장면을 나열하여 장면의 양이 많음만을 보여주는 것은 지양하고자 했다. 단순 나열은 내가 의도한 직관과는 거리가 멀었기 때문이다. 그래서 처음엔 우리가 시각적으로 장면을 받아들이는 것을 반영하여 앞, 위, 밑, 양옆을 포함한 직육면체 여럿이 서로 중첩되어있는 형태로 그림을 구성해보았다.
그러나 이것은 우리가 실제로 장면을 인식하는 것과는 괴리가 있는 듯 했다. 직관적으로 와닿지 못한다고 생각하여 우리가 어떻게 기억하는지 고민해보게 되었다.
이 과정에서 영감이 되었던 것은 다니엘 리베스킨트의 한 드로잉이었다. 이 드로잉은 마치 장면의 나열과도 같았다. 한 공간의 부분 부분을 임의로 선별하여 생략하는 부분은 과감히 생략해 서로 합쳐 결론적으로는 공간이 한 눈에 들어오게 되었다. 우리가 장면을 기억하는 방법도 그의 드로잉과 같이 장면의 일부분을 기억에 남기고, 그것을 다른 부분과 결부시키는 것이라는 생각이 들었다. 우리는 카메라 렌즈처럼 있는 것을 그대로 카피하지 않고, 끊임없이 생각하며 장면과 다른 상념을 엮기 때문이다.
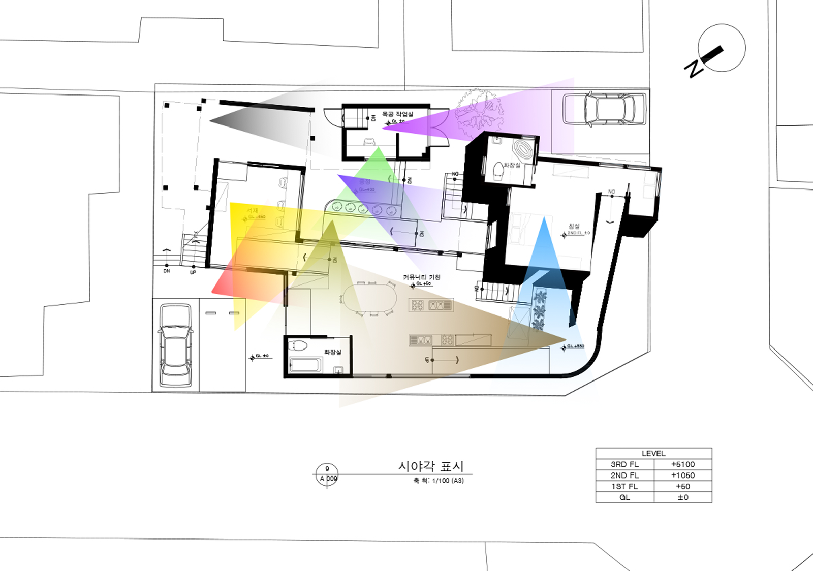
장면의 부분을 선별하고 그것들을 서로 엮는다는 것을 컨셉으로 드로잉의 구체적인 표현 방식에 대해 고민해야 했다. 목표로 했던 것은 직관적인 이미지였기에, 나는 사람들의 공감을 이끌어내는 것이 우선이라고 생각했다. 때문에 우리가 장면을 바라보는 1인칭 시점에서 장면을 선별하고, 드로잉의 템플릿 또한 1인칭으로 가져가면 좋을 것 같다는 생각이 들었다. 그렇기에 직사각형의 A2보단 이점투시도의 소실점과 소실선을 테두리삼은 마름모 형태를 드로잉의 틀로 잡아보았다.
이 틀 안에 들어갈 장면 또한 직관이라는 테마에 맞춰 공감을 자아내는 무언가로 만들어내고 싶었다. 때문에 나는 지극히 일상적이게 이 주택의 정주인원 중 한 명이 특정 순간에 특정한 한 장면을 바라보며 이 주택에서의 여러 장면을 기억하는 방식을 표현해보고자 했다. 정주인원의 눈은 한 장면을 바라보고 있으나, 그의 머릿속은 주택에서의 여러 장면을 서로 관계시키며 기억하는 것이다.
정한 장면은 과제2를 하며 가장 신경썼던 장면이다. 지면으로부터 400정도 낮은 높이의 서재에서 중정과 커뮤니티 키친, 그리고 하늘을 바라보는 장면. 도로와 주변 고층건물 등의 스트레스는 최대한 걷어내고 보고싶은 것만을 볼 수 있도록 의도한 것이다. 바라보는 사람도 내가 가장 신경썼던 인물이다. 휠체어 사용자인 할머니. 장애인인 그녀가 이 주택에서 가지는 다채로운 경험은 제약을 딛고서 일상을 누린다는 이 주택의 목적에 부합한다.
이 장면에 겹치는 또 다른 여러 장면들을 이 틀로부터 부분적으로 떼어내어 각자의 장면에 맞는 분위기, 시간대, 감각을 등을 반영한 후 각자의 관계에 맞게 원래대로 조립한다. 장면을 부분적으로 기억한다는 의도에 맞춰 해당 장면의 일부분이 그 특정 시점에서 보이는 그대로의 모습으로 표현하지 않고 앞서 정한 특정 시점에 부합하는 모습으로 드러난다.
이 조각들이 나뉘는 것이 장면의 연속인 일상을 표현한다면 이 조각들이 서로 접합하는 방식은 이들이 누릴 수 있는 자유를 표현한다. 서로 각기 다른 각도와 접합 방식으로 결합되며 한 사람이 이 공간에서 장면을 기억하는 방식이 언제든 달라질 수 있고, 셀 수 없이 다양하며, 각기 다른 정주인원마다 다르게 나타날 수 있음을 표현한다. 각 장면, 혹은 그 사이마다 배치된 사람들은 자유와 일상 속에서 피어나는 교류를 표현하고자 추가했다. 이 장면을 바라보는 사람이 이토록 많은 사람과의 관계를 누릴 수 있으며, 이는 그저 사람만이 아닌 공간의 다채로운 특성에 기인함을 드러낸다.
지극히 인간적인 관점으로 한 사람이 한 공간을 받아들이는 과정을 표현해보는 뜻깊은 경험이었다.
크리에이티브 커먼즈 라이선스
유동수의 저작물인 이 저작물은 크리에이티브 커먼즈 저작자표시 4.0 국제 라이선스에 따라 이용할 수 있습니다.
Copyright © uosarch.ac.kr., Some rights reserved.
고장 및 불편 신고