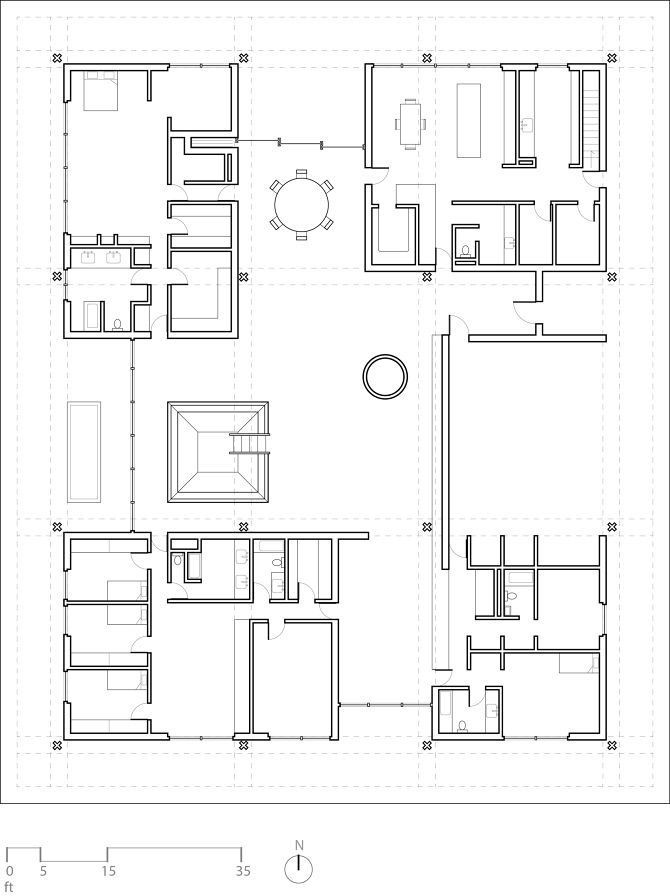
이건물의 특징은 십자형 기둥으로 분리된 천창 그리드와 건물 배치라고 생각했다. 이중 나는 건물 즉 방의 배치에 집중하였다. 내가 느끼기에 이건물은 방배치를 먼저 한 다음 기둥을 그에 맞게 세운 느낌을 받았다
그래서 난 흰 도화지 위에 방 배치를 하는 건축가의 모습을 상상하고 흰 도화지이는 그 어느곳이든 배치 할 수 있으므로 배치 자율성을 생각해냈다. 그것을 표현하기 위해 레고처럼 구멍을 뚫고 그 어느곳이든 배치할수 있는 틀을 만들었다.
그리고 증축을 통해 그 자율성을 극대화하였다
크리에이티브 커먼즈 라이선스
김세진의 저작물인 이 저작물은 크리에이티브 커먼즈 저작자표시 4.0 국제 라이선스에 따라 이용할 수 있습니다.
Copyright © uosarch.ac.kr., Some rights reserved.
고장 및 불편 신고