이로재의 수백당을 선정해 과제를 진행하였다.
승효상 건축가는 마당을 실외가 아니라, 천장이 뚫려 있는 또 하나의 실내 방으로 봤다고 한다. 나는 이 점이 흥미로워서 마당을 중심으로 조사를 시작했다. 조사하면서, 그 사이에 있는 외부의 방들은 각각의 방의 독립성을 위해 만들어졌다는 생각이 들었다. 또 주변이 전부 자연인 수백당에서 단순히 자연을 느끼기 위해 외부의 방을 만든 것은 아니라고 판단했고, 이 주택에는 그보다 더 중요한 개념이 있을 것 같다고 생각했다.
다음으로 눈에 띈 건 수백당의 창이었다. 수백당의 창은 높이, 넓이, 위치까지 모두 달라서 각기 다른 모양을 하고 있었다. 내부에서 창을 통해 본 외부의 사진을 보니, 어떤 창의 프레임은 외부를 집 안으로 강하게 끌어들이는 느낌이었고, 반대로 어떤 창은 사람의 동선이나 용도에 따라 낮게 혹은 얇게 만들어져 자연을 제한적으로 받아들이는 느낌이었다.
이후로는 수백당의 창에 집중하며 과제를 진행했고, 결국 수백당의 창과 마당은 자연과 실내의 관계를 조율하는 장치라는 생각을 하게 되었다.
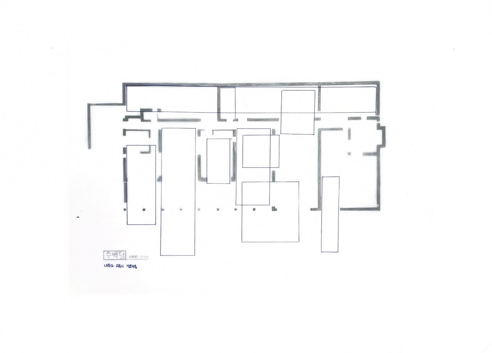
그래서 이번 모형에서는 수백당의 마당과 창이 외부와 얼마나 적극적이거나 소극적으로 상호작용하는지를 표현하는 데 중점을 두었다. 이를 위해 나는 박스의 프레임을 딴 형태를 사용했다. 이것은 공간이 외부로 얼마나 뻗어나가는지를 추상적으로 드러내는 장치이다. 즉, 프레임의 길이와 방향이 곧 그 공간이 외부와 교류하는 정도와 방식을 나타낸다.
자세히 보면, 뒷마당은 담 때문에 수평적인 교류는 제한되지만, 하늘과는 깊게 연결된다. 이를 표현하기 위해 뒷마당 프레임을 위로 길게 뻗어 올려, '수평적으로는 닫혀 있지만, 수직적으로는 크게 열린 관계'를 드러냈다.
반대로 앞마당은 앞과 위 두 방향으로 모두 열려 있기 때문에 외부와의 교류가 가장 적극적이다. 그래서 앞마당 프레임은 앞쪽과 위쪽으로 동시에 확장시켜 이중적인 개방성을 표현했다. 왼쪽에서 두 번째 마당은 물마당이다. 물에 하늘이 비치기 때문에 앞쪽보다는 하늘과의 관계가 더 깊다고 판단하여, 프레임을 가장 높이 뻗게 했다. 또한 왼쪽에서 두 번째 실내 방인 안방은 프라이버시 문제로 창을 어둡게 처리해 외부와의 관계를 소극적으로 제한하였다. 그래서 프레임 역시 외부로 크게 뻗어나가지 않고, 내부로 닫힌 느낌을 주도록 했다. 마찬가지로 작업실의 낮은 창도 크게 열 수 있었지만, 창 앞에 좌식 식탁과 방석이 있어 앉았을 때만 마당까지만 시선을 허용하며, 외부와 제한된 방식으로 소극적으로 반응한다.
크리에이티브 커먼즈 라이선스
인주혜의 저작물인 이 저작물은 크리에이티브 커먼즈 저작자표시 4.0 국제 라이선스에 따라 이용할 수 있습니다.
Copyright © uosarch.ac.kr., Some rights reserved.
고장 및 불편 신고