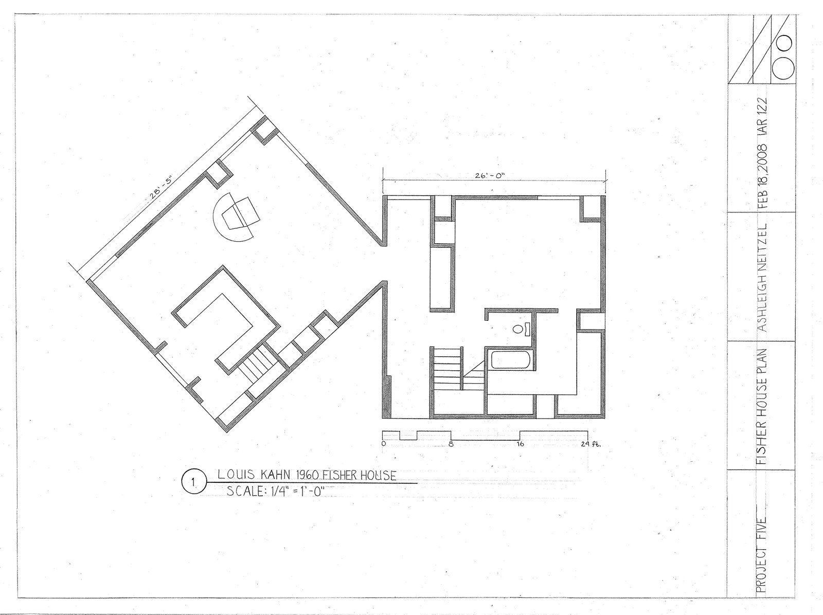
Fisher hosue는 두 개의 정육면체가 45도 각도로 독립적인 구조를 띄고있습니다. 두 개의 층으로 분리되어있는 개인 공간과 한 층으로 이루어진 거실과 식당 중 통 개방감이 드러난 거실이 눈에 띄었습니다.
입구의 통로를 따라 거실로 들어오면, 모서리에 있는 통 유리를 통해 빛이 들어오는 장면을 볼 수 있습니다. 창문에 같이 배치되어있는 의자에 빛과 그림자들이 기하학적 모양을 드러내 마치 의자에 앉게 하려는 의도를 만들어냈습니다. 또한 의자에 다가가는 과정에서도 바깥에 위치한 숲과 빛, 그림자 등 자연 요소들을 더 자세히 느낄 수 있습니다. 마침내 의자에 앉아 시선을 반대 방향으로 돌렸을 때는 이전과는 정반대인 집 내부에서 그림자가 쏟아지는 듯한 장면을 볼 수 있습니다.
위의 모형은 Fisher house의 일부 부분만 재현해낸 것입니다. 거실 입구에 들어왔을 때, 의자에 앉기 위해 창문으로 다가갈 때, 의자에 앉아 시선을 돌렸을 때, 즉 하나의 동선으로 세가지 시선을 만들 수 있었습니다. 창문에 위치한 의자가 하나의 스테이지가 된 것처럼 뒤에서 비치는 빛은 조명처럼 연극 무대 같았습니다. 시선에 따른 그림자의 이동이 장면 하나하나를 즐겁게 만들어주었습니다. 이에 따라 세 개의 시선을 각각 나눠 그림자의 이동 형태를 추상화해 패턴으로 나타내보았습니다. 그림자의 희미한 정도에 따라, 벽의 경계나 들어오는 방향을 고려해 그려보았습니다.
이 과제를 마무리하며, 저는 Louis Kahn이 Fisher House를 설계할 때 자연의 요소를 집 안으로 끌어들여, 빛과 그림자의 움직임을 한 편의 장면처럼 드러내고자 했던 것이 아닐까 생각했습니다. 창과 의자의 배치는 그가 의도한 무대 장치였고, 그 빛을 따라 걷는 동선은 작은 연극무대에 있는 경험을 선사합니다.
크리에이티브 커먼즈 라이선스
박시우의 저작물인 이 저작물은 크리에이티브 커먼즈 저작자표시 4.0 국제 라이선스에 따라 이용할 수 있습니다.
Copyright © uosarch.ac.kr., Some rights reserved.
고장 및 불편 신고