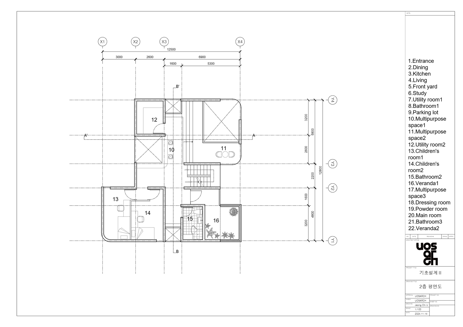
층마다의 특징이 아닌 전체적인 특징을 먼저 말해보겠다.
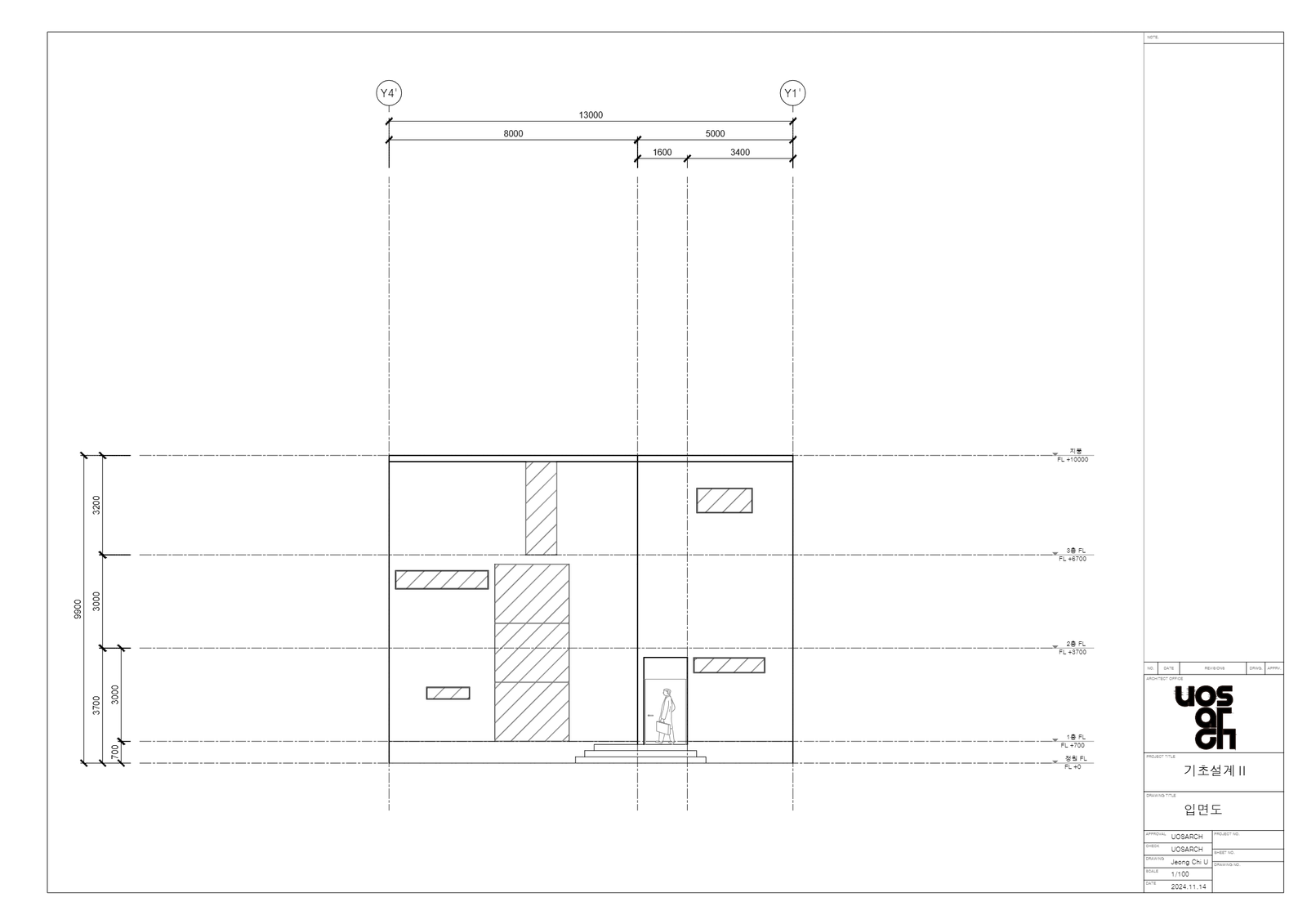
이 집은 도면 상의 'Y2' 혹은 'Y3' 축을 기준으로 위 쪽은 공용, 아래 쪽은 개인적 공간 특성을 가진다.중앙에 길에 나 있는 복도와 복도의 양 끝엔 통창이 있고 그 통창은 1층부터 3층까지 이어진다. 또한 마당에서 바라보는 집은 오픈되어있는것처럼 느껴지지만 반대쪽(도로쪽)에서 본 집은 개인적인 공간이라 느껴진다. 이것에는 '창'이 큰 역할을 한다. 마당 방향에는 창을 많이 두고 베란다 등 열려있는 공간이 많지만, 반대편에는 창을 아주 제한적으로 둘 뿐 아니라 입구 또한 계단을 두어 레벨을 높였기 때문이다. 이렇게 의도한 이유는 사이트의 특징과도 관련이 있는데 사이트의'B'구역은 두 면이 도로와 맞닿아 있고 도로의 건너에는 많은 사람들이 이용하는 공원이 위치해있기 때문에 프라이버시와 관련한 문제가 중요하다 생각했기 때문이다. 또한 창이 있는 부분의 반대편엔 똑같이 창을 내어 답답하다 느끼지 않게, 내부 공간이 넓게 보이게 하였다.






