About
Log in
Semester
Class
Project
About
Log in
실시설계
Design and Practice for Construction
건축설계 6
::
Architectural Design 6
Studio C Ho-rak Lee
문희성
|
2023-12-28 22:08
PLAN
ELEVATION/SECTION
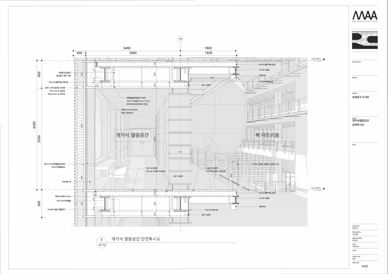
PERSPECTIVE SECTION VIEW
확대 및 상세도
문희성
의 저작물인
이 저작물은
크리에이티브 커먼즈 저작자표시 4.0 국제 라이선스
에 따라 이용할 수 있습니다.
Copyright ©
uosarch.ac.kr
., Some rights reserved.
고장 및 불편 신고