2019 FALL ARCHITECTURAL DESIGN 2 - STUDIO A 김혜린
빛 스터디 이후에 진행된 프로젝트는 선정된 대지에 전시관을 설계하는 것이었다.
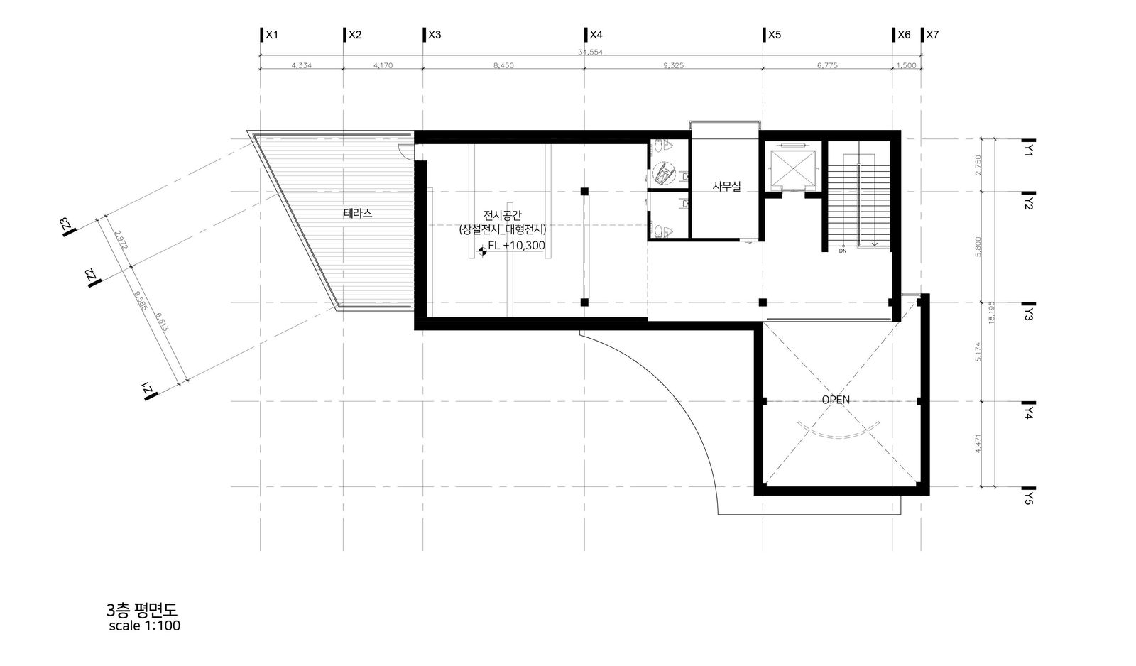
종로구 재동 25-2, 25-4, 32-5, 32-10, 32-21, 36-1, 36-2, 37-1, 37-2, 38-1, 38-2 외 지정된 구역 내에서 대지 800~1000m2 선정하여 사이트를 정하며 경사 및 지형의 고저차를 활용하여 건물을 배치하고, 건물의 기능과 외부공간을 연계할 수 있도록 구성하는 것이 이 프로젝트의 목표이다.
나는 한국의 것을 느끼러 방문하는 관광객이 많다는 것이 북촌의 가장 큰 특징이라고 생각했다. 한국 문화 중 규방공예가 시각적으로 사람들의 흥미를 끌 수 있을 것이라고 판단해서 규방공예 중 '조각보'를 전시관의 주요 프로그램으로 설정했다.
도시분석 결과, 북촌에는 전통한옥보다는 폐쇄적인 구조의 한옥이 많이 분포하여있다는 사실을 알 수 있었다. 그래서 이 흐름을 이어가 전시관의 배치를 폐쇄적/내부지향적으로 하였다. 즉, 대로을 향해 등지고 있지만 골목길을 향해서는 열려있으며 골목길 위주의 동선이 이뤄지게끔 배치하였다. 사이트를 가운데 두고 양쪽에 차량통행이 가능한 대로와 골목길이 존재하는데, 차량통행과 유동인구가 많은 대로에 비해 골목길은 유동인구가 아주 적은 것을 알 수 있었다. 골목길로 더 많은 사람들을 유입하기 위해 골목길로 들어가는 부분의 매스를 방향성을 띨 수 있도록 덜어내었다. 또, 서쪽이 높고 동쪽이 낮은 등고차를 활용하기 위하여 건물 안에서 서쪽과 동쪽의 레벨 차이를 두어 이를 표현하였다. 이렇듯 전반적인 설계에서 도시분석내용이 최대한 적용되게끔 노력했다.
























