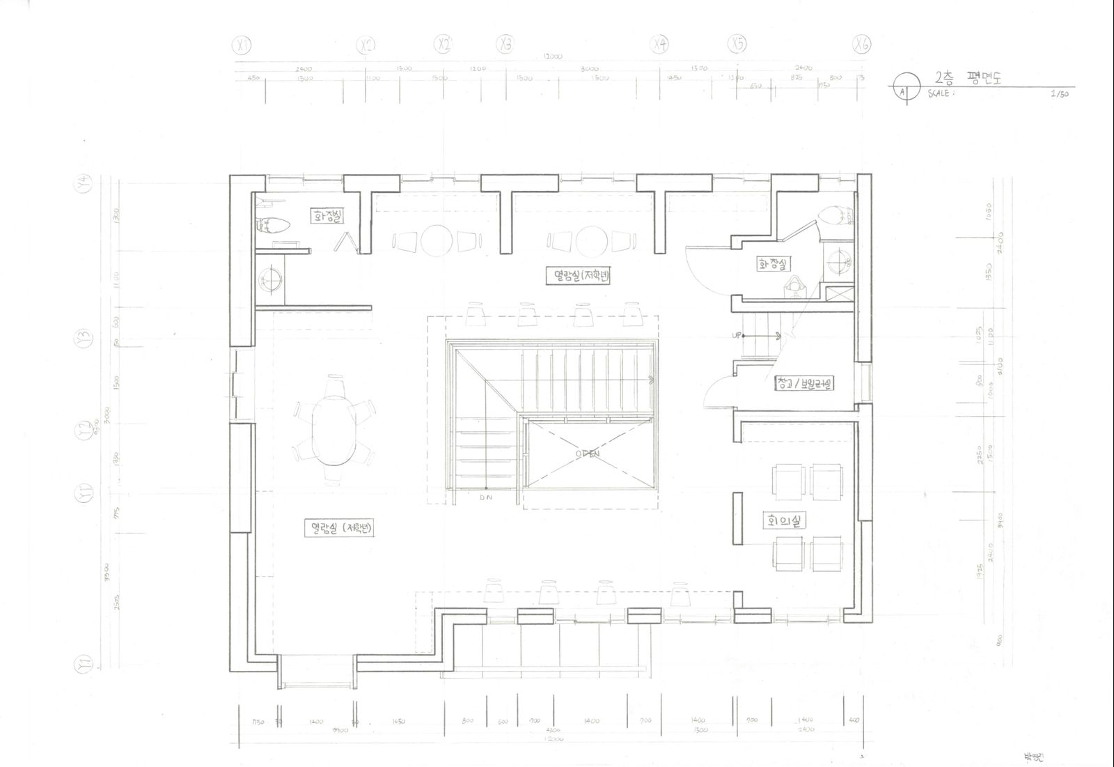
동대문구에 위치한 휘경어린이도서관의
1층 평면도, 2층평면도, 종 단면도, 입면도를 직접 제도하였다.
선을 그을 때마다 선이 나타내는 의미를 고민하고 질문하였다.
이를 통해 선을 이해한 뒤, 0.3mm, 05,mm, 0.7mm의 샤프로 선의 굵기에 차이를 두며 도면을 그렸다.
실제 건물을 방문한 뒤 이를 도면으로 나타내는 작업을 통해
도면과 스케일을 보면서 실제 공간을 상상할 수 있었다.
도면의 치수들을 보며 사람이 이동하기에 편리한 복도와 방의 크기를 알 수 있었고,
이 건물의 동선과 공간의 배치에 대해서 이해할 수 있었다.
1층 평면도



