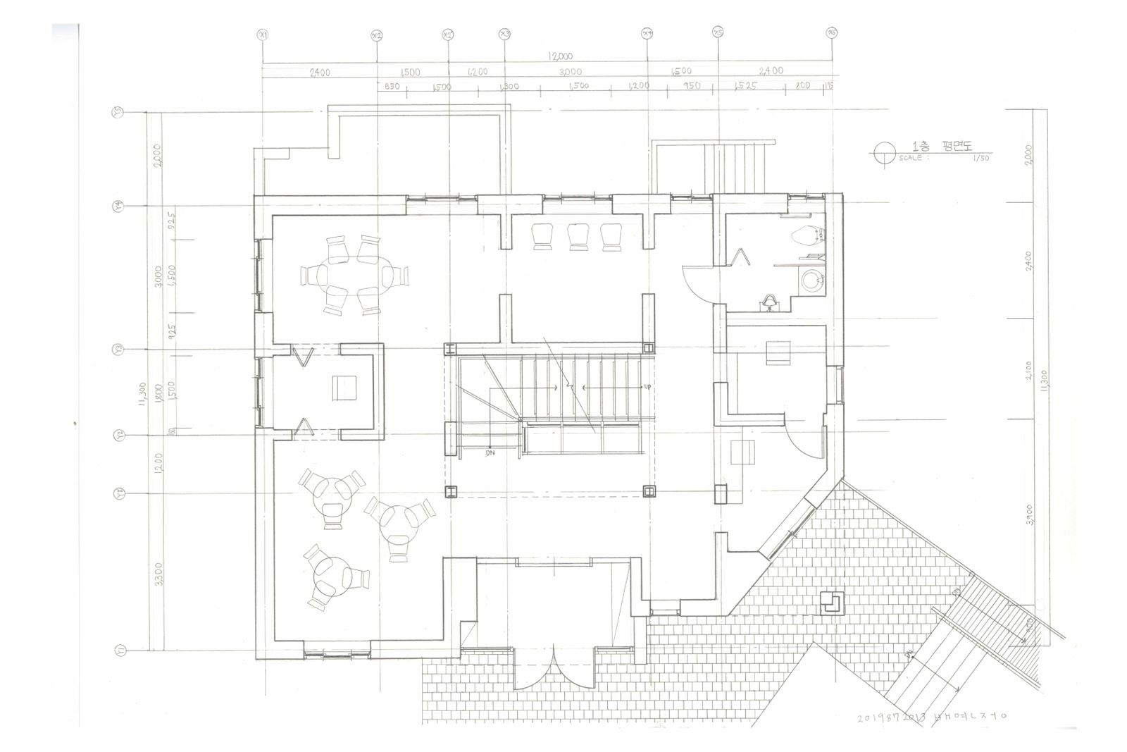
휘경 어린이 도서관은 기존의 주택을 리모델링 한 것이다.
우리는 휘경 어린이 도서관의 평면도, 단면도, 그리고 입면도를 직접 제도하였다.
오늘날 건축에서는 직접 제도하는 경우가 거의 없지만, 건축의 가장 기본적인 표현 도구인 도면을 이해하고 사용하기 위해 우리는 휘경 어린이 도서관을 직접 제도하는 도전을 했다.
특히 우리는 다음과 같은 목표를 가지고 제도하였다.
1. 스케일 사용 방법 익히기
2. 도면 상의 기호 익히기
3. 도면을 이해하고 읽기
4. 스케일 감 익히기
준비물은 다음과 같다.
1. 제도판
2. 0.3mm/0.5mm/0.7mm 제도용 샤프
3. 스케일
4. 삼각자



